カンフォーラ松原(佐賀県佐賀市松原)の建物情報
カンフォーラ松原 賃貸物件基本情報
このページの情報は広告情報ではありません。過去から現在までCHINTAIネットに掲載のあった物件情報を元に作成した参考ページです。
| 家賃 | -- |
|---|---|
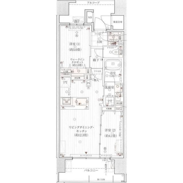
| 間取り | -- |
| 築年 | 2015年02月 (築11年) |
| 建物種別/構造 | マンション/鉄筋コンクリート造 |
| 階建 | 10階建 |
| 住所 | 佐賀県佐賀市松原 |
閉じる
| 交通 |
長崎本線/佐賀駅
徒歩19分
長崎本線/鍋島駅 徒歩50分 唐津線/鍋島駅 徒歩50分 昭和バス(佐賀市)/県警本部前 バス0分:停歩3分 |
|---|---|
| 駐車場 | 駐車場あり |
| 環境 |
駅まで平坦
※部屋・階数により設備が異なる場合がございます。 |
| 建物設備 |
オートロック
/
宅配ボックス
/
エレベーター
/
LPガス
/
電気
/
公営上水道
/
下水道
/
駐輪場
※部屋・階数により設備が異なる場合がございます。 |
