エスリード箕面船場阪大前(1005)(大阪府箕面市船場東2丁目)の建物情報
掲載中の賃貸物件は1件あります!
エスリード箕面船場阪大前(1005) 賃貸物件基本情報
| 交通 |
北大阪急行電鉄南北線/千里中央駅
徒歩20分
北大阪急行電鉄南北線/箕面船場阪大前駅 徒歩2分 北大阪急行電鉄南北線/箕面萱野駅 徒歩15分 |
|---|---|
| 駐車場 | 駐車場なし |
| 環境 |
--
※部屋・階数により設備が異なる場合がございます。 |
| 建物設備 |
オートロック
/
宅配ボックス
/
防犯カメラ
/
エレベーター
/
敷地内ごみ置き場
/
集合郵便受け
/
都市ガス
/
電気
/
公営上水道
/
下水道
/
駐輪場
※部屋・階数により設備が異なる場合がございます。 |
エスリード箕面船場阪大前(1005) 賃貸物件の空室情報
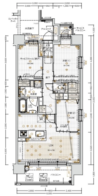
| 間取図 | 家賃 管理費等 |
敷金/保証金 礼金/償却 |
間取り 専有面積 |
方位物件 階層 |
詳細を見る お問い合わせする |
|---|---|---|---|---|---|
|
|
20.05万円 9,900円 |
--/-- 20.05万/-- |
3LDK 62.55㎡ |
南 10階 |
エスリード箕面船場阪大前(1005)周辺の空室物件
エスリード箕面船場阪大前(1005)周辺が得意な不動産店舗
株式会社エイブル千里中央店
- オススメ
オススメポイント 人気の北摂エリアのお部屋探しは私たちにおまかせください!
- 交通
- 北大阪急行電鉄南北線/千里中央駅
- 所在地
- 大阪府豊中市新千里東町1-3-102
- 仲介手数料家賃の55%以下
- 駅から徒歩3分以内
- 多店舗展開
- 年中無休
掲載物件数:
1052
件
- 得意駅
- 千里中央駅 桃山台駅 少路駅 山田駅 北千里駅 他
- 得意エリア
- 豊中市 吹田市 箕面市 高槻市 摂津市 他
06-6835-8126
