アイビーハイム(大阪府大阪市淀川区加島4丁目)の建物情報
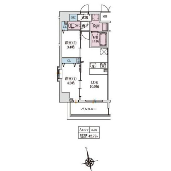
アイビーハイム 賃貸物件基本情報
このページの情報は広告情報ではありません。過去から現在までCHINTAIネットに掲載のあった物件情報を元に作成した参考ページです。
| 交通 |
学研都市線<片町線>・JR東西線/御幣島駅
徒歩28分
学研都市線<片町線>・JR東西線/加島駅 徒歩11分 阪急神戸線/神崎川駅 徒歩19分 |
|---|---|
| 駐車場 | 駐車場あり |
| 環境 |
--
※部屋・階数により設備が異なる場合がございます。 |
| 建物設備 |
オートロック
/
エレベーター1基
/
集合郵便受け
/
コインランドリー
/
都市ガス
/
電気
/
公営上水道
/
下水道
/
駐輪場
※部屋・階数により設備が異なる場合がございます。 |
アイビーハイム周辺の空室物件
大阪市淀川区周辺が得意な不動産店舗
株式会社エイブル阪急十三店
- オススメ
オススメポイント 淀川区でのお部屋探しはエイブル阪急十三店にお任せください。
- 交通
- 阪急神戸線/十三駅
- 所在地
- 大阪府大阪市淀川区十三本町1-8-15宇杉ビル1F
- 仲介手数料家賃の55%以下
- 駐車場有
- 女性スタッフ対応
- 駅から徒歩3分以内
掲載物件数:
720
件
- 得意駅
- 十三駅 塚本駅 神崎川駅 三国駅 御幣島駅 他
- 得意エリア
- 大阪市淀川区 大阪市西淀川区 大阪市北区 豊中市 大阪市福島区 他
06-6307-8126
