千代崎ハイツ(大阪府大阪市西区千代崎1丁目)の建物情報
掲載中の賃貸物件は1件あります!
千代崎ハイツ 賃貸物件基本情報
| 交通 |
大阪環状線/大正駅
徒歩14分
大阪メトロ長堀鶴見緑地線/大正駅 徒歩10分 阪神なんば線/九条駅 徒歩8分 大阪メトロ中央線/九条駅 徒歩8分 大阪メトロ千日前線/西長堀駅 徒歩13分 大阪メトロ長堀鶴見緑地線/西長堀駅 徒歩13分 大阪メトロ千日前線/桜川駅 徒歩18分 大阪メトロ長堀鶴見緑地線/ドーム前千代崎駅 徒歩8分 大阪メトロ中央線/コスモスクエア駅 徒歩8分 阪神なんば線/ドーム前駅 徒歩8分 |
|---|---|
| 駐車場 | 駐車場なし |
| 環境 |
2駅利用可
/
3沿線駅利用可
※部屋・階数により設備が異なる場合がございます。 |
| 建物設備 |
24時間ゴミ出し可
/
敷地内ごみ置き場
/
都市ガス
/
電気
/
下水道
※部屋・階数により設備が異なる場合がございます。 |
千代崎ハイツ 賃貸物件の空室情報
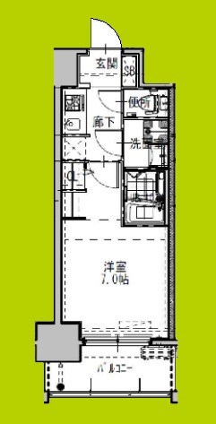
| 間取図 | 家賃 管理費等 |
敷金/保証金 礼金/償却 |
間取り 専有面積 |
方位物件 階層 |
詳細を見る お問い合わせする |
|---|---|---|---|---|---|
|
|
4.15万円 3,500円 |
なし/なし なし/なし |
1R 17.8㎡ |
-- 2階 |
千代崎ハイツ周辺の空室物件
千代崎ハイツ周辺が得意な不動産店舗
- 交通
- 大阪メトロ四つ橋線/四ツ橋駅 大阪メトロ御堂筋線/心斎橋駅 大阪メトロ御堂筋線/なんば駅
- 所在地
- 大阪府大阪市西区北堀江1-2-17
掲載物件数:
10001
件
06-6531-3215
