RYU:X TOWER The EAST(リュークスタワー ザ イースト)(沖縄県那覇市おもろまち1丁目)の建物情報
RYU:X TOWER The EAST(リュークスタワー ザ イースト) 賃貸物件基本情報
このページの情報は広告情報ではありません。過去から現在までCHINTAIネットに掲載のあった物件情報を元に作成した参考ページです。
| 交通 |
沖縄都市モノレール<ゆいレール>/安里駅
徒歩13分
沖縄都市モノレール<ゆいレール>/おもろまち駅 徒歩6分 沖縄都市モノレール<ゆいレール>/古島駅 徒歩17分 |
|---|---|
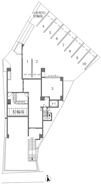
| 駐車場 | 駐車場あり |
| 環境 |
3駅利用可
/
バス2路線
/
100円バス路線
/
閑静な住宅地
/
平坦地
/
駅まで平坦
※部屋・階数により設備が異なる場合がございます。 |
| 建物設備 |
オートロック
/
宅配ボックス
/
防犯カメラ
/
エレベーター2基
/
24時間ゴミ出し可
/
敷地内ごみ置き場
/
都市ガス
/
電気
/
駐車場1台無料
/
駐輪場
/
バイク置場
※部屋・階数により設備が異なる場合がございます。 |
