フラットナガオ(岡山県倉敷市玉島長尾)の建物情報
掲載中の賃貸物件は4件あります!
フラットナガオ 賃貸物件基本情報
| 交通 |
山陽本線(中国)/新倉敷駅
徒歩18分
|
|---|---|
| 駐車場 | 駐車場あり |
| 環境 |
--
※部屋・階数により設備が異なる場合がございます。 |
| 建物設備 |
防犯カメラ
/
敷地内ごみ置き場
/
LPガス
/
電気
/
公営上水道
/
下水道
/
駐輪場
※部屋・階数により設備が異なる場合がございます。 |
フラットナガオ 賃貸物件の空室情報
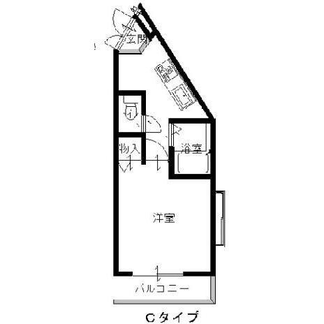
| 間取図 | 家賃 管理費等 |
敷金/保証金 礼金/償却 |
間取り 専有面積 |
方位物件 階層 |
詳細を見る お問い合わせする |
|---|---|---|---|---|---|
|
|
2.5万円 2,000円 |
なし/-- 1ヶ月/-- |
1K 22.85㎡ |
-- 1階 |
|
|
|
2.5万円 2,000円 |
--/-- 1ヶ月/-- |
1K 22.85㎡ |
南 1階 |
|
|
|
2.8万円 2,000円 |
なし/-- 1ヶ月/-- |
1K 22.85㎡ |
-- 2階 |
|
|
|
2.8万円 2,000円 |
--/-- 1ヶ月/-- |
1K 23.18㎡ |
南 2階 |
フラットナガオ周辺の空室物件
フラットナガオ周辺が得意な不動産店舗
オススメポイント ◆エイブルNWイオンモール倉敷店は21時まで営業(^^)/◆
- 交通
- 山陽本線(中国)/倉敷駅
- 所在地
- 岡山県倉敷市水江1イオンモール倉敷1F
- 保証人不要相談可
- 引越会社紹介
- 19時以降も営業
- 多店舗展開
掲載物件数:
1399
件
- 得意駅
- 倉敷駅 西阿知駅 新倉敷駅 金光駅 鴨方駅 他
- 得意エリア
- 倉敷市 小田郡矢掛町 総社市 都窪郡早島町
086-430-5875
