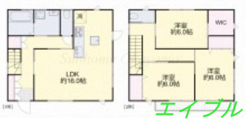
米倉貸家4号棟(岡山県岡山市南区米倉)の建物情報
米倉貸家4号棟 賃貸物件基本情報
このページの情報は広告情報ではありません。過去から現在までCHINTAIネットに掲載のあった物件情報を元に作成した参考ページです。
| 交通 |
山陽本線(中国)/岡山駅
バス19分:停歩2分
宇野線<宇野みなと線>/大元駅 徒歩40分 宇野線<宇野みなと線>/備前西市駅 徒歩12分 山陽本線(中国)/北長瀬駅 徒歩51分 |
|---|---|
| 駐車場 | 駐車場あり |
| 環境 |
4駅以上利用可
/
2沿線利用可
/
閑静な住宅地
/
平坦地
/
駅まで平坦
※部屋・階数により設備が異なる場合がございます。 |
| 建物設備 |
LPガス
/
公営上水道
/
駐車場1台無料
/
平面駐車場
※部屋・階数により設備が異なる場合がございます。 |
米倉貸家4号棟周辺の空室物件
岡山市南区周辺が得意な不動産店舗
オススメポイント 南区、玉野、倉敷のお部屋探しはエイブル妹尾店にお任せ下さい!
- 交通
- 瀬戸大橋線/妹尾駅
- 所在地
- 岡山市南区妹尾2344-5
- 多店舗展開
- 年中無休
- 開店10年以上
- 駅まで車で送迎可
掲載物件数:
834
件
- 得意駅
- 妹尾駅 備前西市駅 大元駅 岡山駅 備中箕島駅 他
- 得意エリア
- 岡山市南区 岡山市北区 倉敷市 岡山市中区 岡山市東区 他
086-259-0450
