ガーデンシティ(岡山県倉敷市日吉町)の建物情報
掲載中の賃貸物件は2件あります!
ガーデンシティ 賃貸物件基本情報
| 交通 |
山陽本線(中国)/倉敷駅
徒歩15分
伯備線/倉敷駅 徒歩15分 水島臨海鉄道水島本線/倉敷市駅 徒歩17分 水島臨海鉄道水島本線/球場前駅 徒歩19分 水島臨海鉄道水島本線/西富井駅 徒歩40分 バス路線/西中学校前 バス15分:停歩3分 |
|---|---|
| 駐車場 | 駐車場あり |
| 環境 |
--
※部屋・階数により設備が異なる場合がございます。 |
| 建物設備 |
宅配ボックス
/
都市ガス
/
公営上水道
/
下水道
/
駐輪場
※部屋・階数により設備が異なる場合がございます。 |
ガーデンシティ 賃貸物件の空室情報
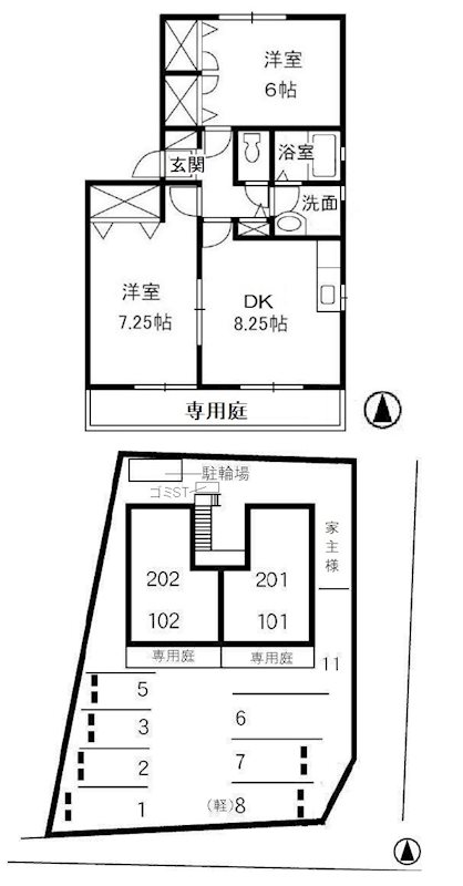
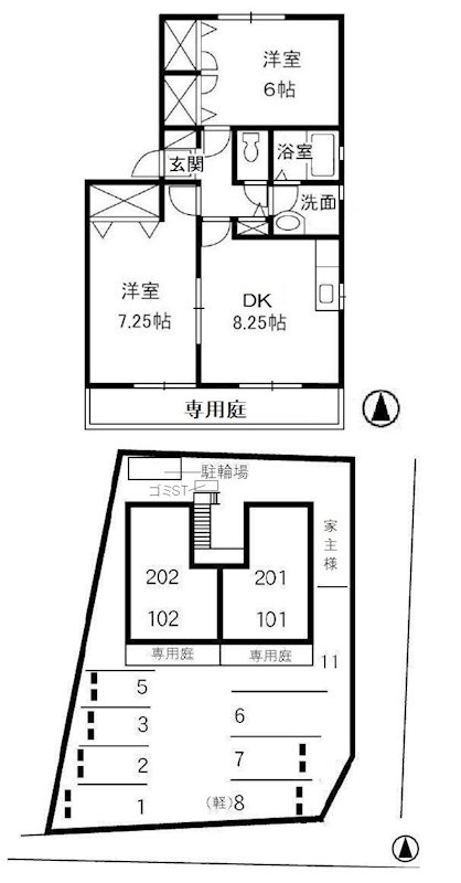
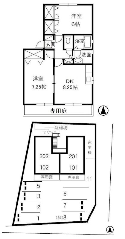
| 間取図 | 家賃 管理費等 |
敷金/保証金 礼金/償却 |
間取り 専有面積 |
方位物件 階層 |
詳細を見る お問い合わせする |
|---|---|---|---|---|---|
|
|
7.4万円 5,000円 |
なし/-- 74,000円/-- |
2LDK 47.92㎡ |
南 1階 |
|
|
|
7.4万円 5,000円 |
なし/-- 74,000円/-- |
2LDK 47.92㎡ |
南 1階 |
ガーデンシティ周辺の空室物件
ガーデンシティ周辺が得意な不動産店舗
オススメポイント ◆倉敷駅北店◆倉敷市北浜町の交差点沿いにあるエイブルです^^
- 交通
- 山陽本線(中国)/倉敷駅
- 所在地
- 岡山県倉敷市北浜町8-20-3
- 多店舗展開
- 駅まで車で送迎可
- 女性スタッフ対応
- 駐車場有
掲載物件数:
889
件
- 得意駅
- 倉敷駅 西阿知駅 中庄駅 新倉敷駅 球場前駅 他
- 得意エリア
- 倉敷市 総社市 都窪郡早島町 浅口市 笠岡市 他
086-441-8511
