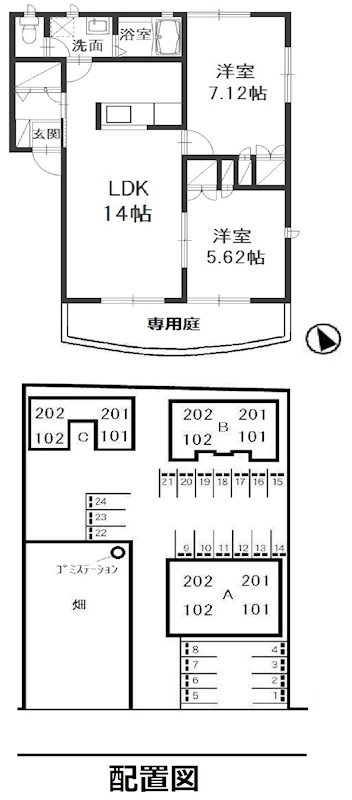
ファミール竹内 A(岡山県倉敷市連島中央5丁目)の建物情報
ファミール竹内 A 賃貸物件基本情報
このページの情報は広告情報ではありません。過去から現在までCHINTAIネットに掲載のあった物件情報を元に作成した参考ページです。
| 交通 |
水島臨海鉄道水島本線/弥生駅
徒歩28分
水島臨海鉄道水島本線/栄駅 徒歩31分 水島臨海鉄道水島本線/常盤駅 徒歩34分 |
|---|---|
| 駐車場 | 駐車場あり |
| 環境 |
3駅利用可
※部屋・階数により設備が異なる場合がございます。 |
| 建物設備 |
敷地内ごみ置き場
/
LPガス
/
電気
/
公営上水道
/
下水道
/
駐車場2台無料
/
駐輪場
※部屋・階数により設備が異なる場合がございます。 |
ファミール竹内 A周辺の空室物件
倉敷市周辺が得意な不動産店舗
オススメポイント ☆倉敷市内及び岡山市内のお部屋探しは当社にお任せ下さい☆
- 交通
- 山陽本線(中国)/倉敷駅
- 所在地
- 岡山県倉敷市白楽町383-3
- 駐車場有
- 女性スタッフ対応
- 駅まで車で送迎可
- 社宅・寮対応物件あり
掲載物件数:
900
件
- 得意駅
- 倉敷駅 中庄駅 西阿知駅 新倉敷駅 球場前駅 他
- 得意エリア
- 倉敷市 総社市 浅口市 都窪郡早島町 浅口郡里庄町 他
086-423-7230
