レーヴ(岡山県総社市中央3丁目)の建物情報
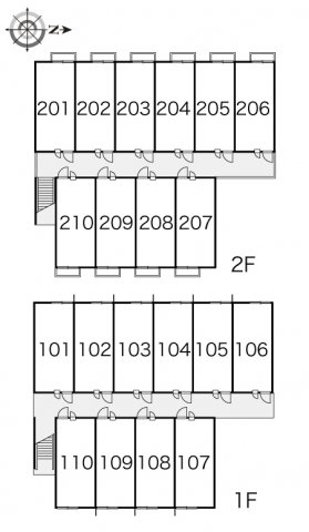
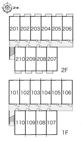
レーヴ 賃貸物件基本情報
このページの情報は広告情報ではありません。過去から現在までCHINTAIネットに掲載のあった物件情報を元に作成した参考ページです。
| 交通 |
吉備線<桃太郎線>/東総社駅
徒歩13分
伯備線/総社駅 徒歩17分 吉備線<桃太郎線>/総社駅 徒歩17分 井原鉄道井原線/総社駅 徒歩17分 |
|---|---|
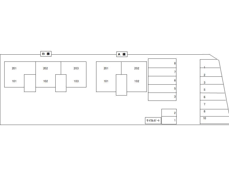
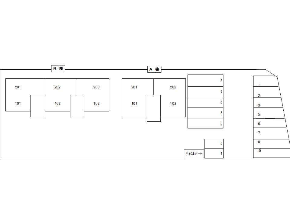
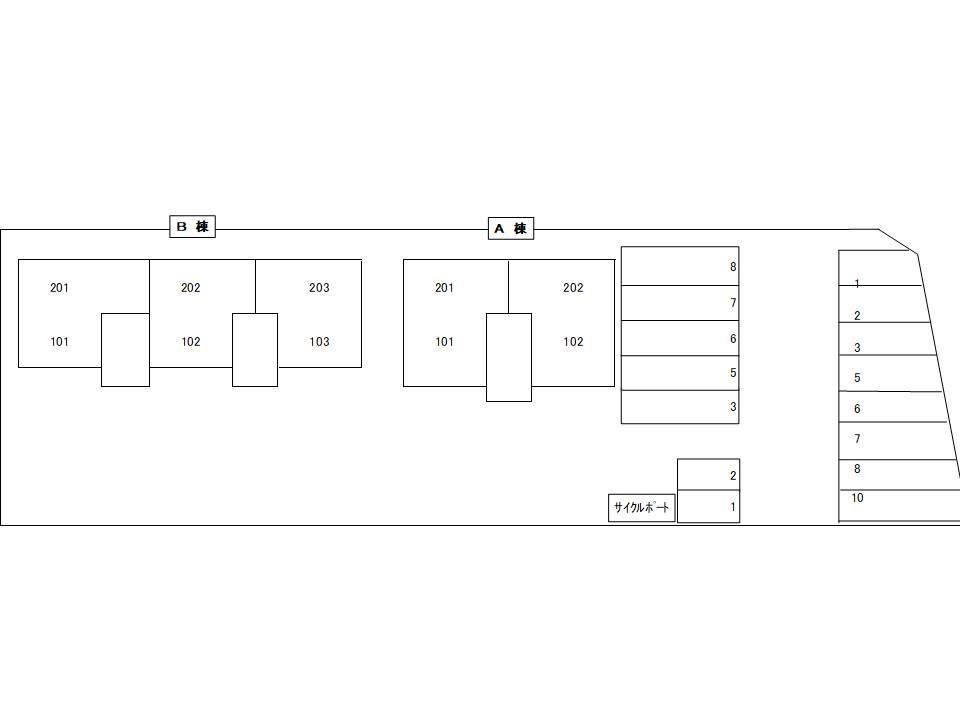
| 駐車場 | 駐車場あり |
| 環境 |
2駅利用可
※部屋・階数により設備が異なる場合がございます。 |
| 建物設備 |
敷地内ごみ置き場
/
LPガス
/
公営上水道
/
下水道
/
駐車場1台無料
/
駐輪場
※部屋・階数により設備が異なる場合がございます。 |
レーヴ周辺の空室物件
総社市周辺が得意な不動産店舗
オススメポイント 総社市の物件はお任せください!!
- 交通
- 吉備線<桃太郎線>/東総社駅
- 所在地
- 岡山県総社市総社1134-3
- 駅まで車で送迎可
- 駐車場有
- 保証人不要相談可
- 多店舗展開
掲載物件数:
1411
件
- 得意駅
- 東総社駅 総社駅 総社駅 清音駅 倉敷駅 他
- 得意エリア
- 岡山市北区 倉敷市 総社市 高梁市
0866-31-5656
