レオパレスフレア駅元町(岡山県岡山市北区駅元町)の建物情報
掲載中の賃貸物件は3件あります!
レオパレスフレア駅元町 賃貸物件基本情報
| 交通 |
山陽本線(中国)/岡山駅
徒歩6分
津山線/岡山駅 徒歩6分 吉備線<桃太郎線>/岡山駅 徒歩6分 赤穂線(岡山県内)/岡山駅 徒歩6分 岡山市電東山本線<岡山電気軌道>/岡山駅前駅 徒歩9分 岡山市電東山本線<岡山電気軌道>/西川緑道公園駅 徒歩13分 岡山市電清輝橋線<岡山電気軌道>/西川緑道公園駅 徒歩13分 |
|---|---|
| 駐車場 | 駐車場なし |
| 環境 |
駅前
/
平坦地
/
駅まで平坦
※部屋・階数により設備が異なる場合がございます。 |
| 建物設備 |
敷地内ごみ置き場
※部屋・階数により設備が異なる場合がございます。 |
レオパレスフレア駅元町 賃貸物件の空室情報
| 間取図 | 家賃 管理費等 |
敷金/保証金 礼金/償却 |
間取り 専有面積 |
方位物件 階層 |
詳細を見る お問い合わせする |
|---|---|---|---|---|---|
|
|
7万円 6,500円 |
--/-- 70,000円/-- |
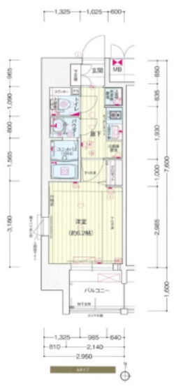
1K 20.28㎡ |
南 1階 |
|
|
|
7.4万円 6,500円 |
--/-- 74,000円/-- |
1K 20.28㎡ |
南 2階 |
|
|
|
7.6万円 6,500円 |
--/-- 76,000円/-- |
1K 20.28㎡ |
南 3階 |
