リースランド平福 B棟(岡山県岡山市南区平福2丁目)の建物情報
掲載中の賃貸物件は3件あります!
リースランド平福 B棟 賃貸物件基本情報
| 交通 |
山陽本線(中国)/岡山駅
バス41分:停歩5分
岡山市電東山本線<岡山電気軌道>/門田屋敷駅 徒歩71分 岡山市電東山本線<岡山電気軌道>/東山・おかでんミュージアム駅 徒歩68分 岡山市電清輝橋線<岡山電気軌道>/清輝橋駅 徒歩63分 岡電バス/平福 徒歩7分 バス路線/平福 バス24分:停歩7分 |
|---|---|
| 駐車場 | 駐車場あり |
| 環境 |
2駅利用可
/
2沿線利用可
/
閑静な住宅地
/
緑豊かな住宅地
/
平坦地
/
駅まで平坦
※部屋・階数により設備が異なる場合がございます。 |
| 建物設備 |
宅配ボックス
/
敷地内ごみ置き場
/
集合郵便受け
/
LPガス
/
公営上水道
/
下水道
/
駐車場2台無料
/
駐車2台可
/
駐輪場
※部屋・階数により設備が異なる場合がございます。 |
リースランド平福 B棟 賃貸物件の空室情報
| 間取図 | 家賃 管理費等 |
敷金/保証金 礼金/償却 |
間取り 専有面積 |
方位物件 階層 |
詳細を見る お問い合わせする |
|---|---|---|---|---|---|
|
|
8.1万円 3,000円 |
--/-- 50,000円/-- |
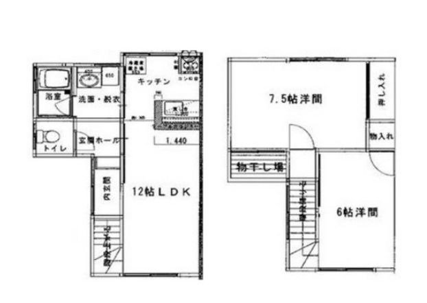
3LDK 83.65㎡ |
南 1階 |
|
|
|
8.1万円 3,000円 |
--/-- 50,000円/-- |
3LDK 83.65㎡ |
南 1階 |
|
|
|
8.1万円 3,000円 |
--/-- 50,000円/-- |
3LDK 83.65㎡ |
南 1階 |
リースランド平福 B棟周辺の空室物件
リースランド平福 B棟周辺が得意な不動産店舗
オススメポイント 南区、玉野、倉敷のお部屋探しはエイブル妹尾店にお任せ下さい!
- 交通
- 瀬戸大橋線/妹尾駅
- 所在地
- 岡山市南区妹尾2344-5
- 多店舗展開
- 年中無休
- 開店10年以上
- 駅まで車で送迎可
掲載物件数:
834
件
- 得意駅
- 妹尾駅 備前西市駅 大元駅 岡山駅 備中箕島駅 他
- 得意エリア
- 岡山市南区 岡山市北区 倉敷市 岡山市中区 岡山市東区 他
086-259-0450
