ラヴィドール(宮崎県宮崎市新栄町)の建物情報
掲載中の賃貸物件は1件あります!
ラヴィドール 賃貸物件基本情報
| 交通 |
日豊本線/宮崎神宮駅
徒歩63分
日豊本線/宮崎駅 徒歩37分 日豊本線/南宮崎駅 徒歩52分 宮崎交通バス(宮崎市)/日の出町 徒歩7分 |
|---|---|
| 駐車場 | 駐車場あり |
| 環境 |
--
※部屋・階数により設備が異なる場合がございます。 |
| 建物設備 |
オートロック
/
敷地内ごみ置き場
/
LPガス
/
電気
/
公営上水道
/
下水道
/
駐輪場
※部屋・階数により設備が異なる場合がございます。 |
ラヴィドール 賃貸物件の空室情報
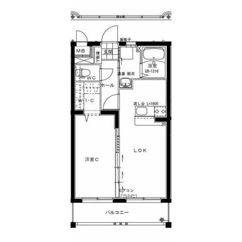
| 間取図 | 家賃 管理費等 |
敷金/保証金 礼金/償却 |
間取り 専有面積 |
方位物件 階層 |
詳細を見る お問い合わせする |
|---|---|---|---|---|---|
|
|
5.3万円 -- |
1.5ヶ月/-- --/-- |
1LDK 41㎡ |
南 4-4階 |
