レオネクストエストⅢ(宮城県仙台市若林区荒井字丑ノ頭101-2)の建物情報
レオネクストエストⅢ 賃貸物件基本情報
このページの情報は広告情報ではありません。過去から現在までCHINTAIネットに掲載のあった物件情報を元に作成した参考ページです。
| 家賃 | -- |
|---|---|
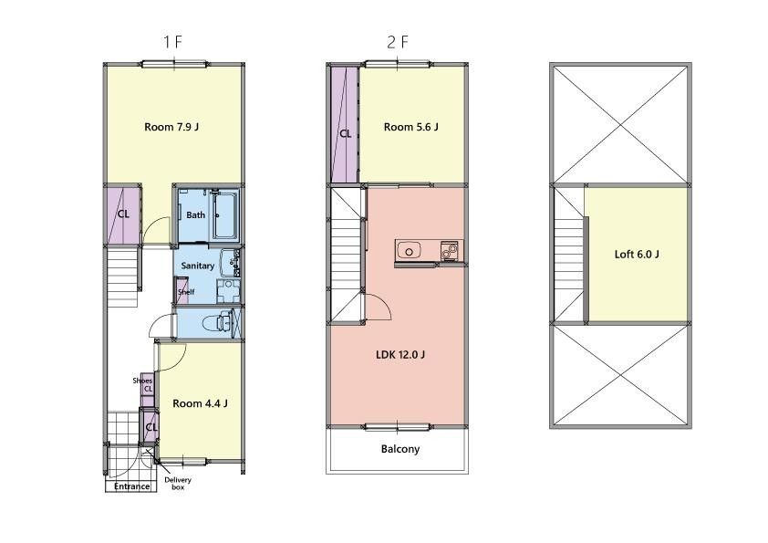
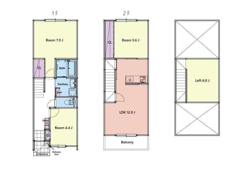
| 間取り | -- |
| 築年 | 2015年07月 (築10年) |
| 建物種別/構造 | アパート/木造 |
| 階建 | 2階建 |
| 住所 | 宮城県仙台市若林区荒井字丑ノ頭101-2 |
閉じる
| 交通 |
仙台市営地下鉄東西線/荒井駅
徒歩15分
|
|---|---|
| 駐車場 | 駐車場あり |
| 環境 |
--
※部屋・階数により設備が異なる場合がございます。 |
| 建物設備 |
防犯カメラ
/
駐輪場
※部屋・階数により設備が異なる場合がございます。 |
レオネクストエストⅢ周辺の空室物件
仙台市若林区周辺が得意な不動産店舗
株式会社エイブル仙台六丁の目店
- オススメ
オススメポイント ”今一番人気” 六丁の目・荒井エリアの中心にあるお店!!
- 交通
- 仙台市営地下鉄東西線/六丁の目駅
- 所在地
- 宮城県仙台市若林区六丁の目中町7-73エクセレント庄清1F
- 駅まで車で送迎可
- 駐車場有
- 女性スタッフ対応
- 仲介手数料家賃の55%以下
掲載物件数:
3248
件
- 得意駅
- 六丁の目駅 荒井駅 卸町駅 中野栄駅 陸前高砂駅 他
- 得意エリア
- 仙台市若林区 仙台市青葉区 仙台市太白区 塩竈市 多賀城市 他
022-390-9801
