インフィニティ富沢(宮城県仙台市太白区大野田5丁目)の建物情報
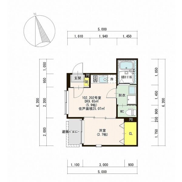
インフィニティ富沢 賃貸物件基本情報
このページの情報は広告情報ではありません。過去から現在までCHINTAIネットに掲載のあった物件情報を元に作成した参考ページです。
| 交通 |
仙台市営地下鉄南北線/長町南駅
徒歩17分
仙台市営地下鉄南北線/富沢駅 徒歩5分 東北本線/太子堂駅 徒歩12分 |
|---|---|
| 駐車場 | 駐車場あり |
| 環境 |
3駅利用可
/
2沿線利用可
/
平坦地
/
駅まで平坦
※部屋・階数により設備が異なる場合がございます。 |
| 建物設備 |
敷地内ごみ置き場
/
LPガス
/
電気
/
公営上水道
/
下水道
/
駐車場1台無料
/
駐輪場
/
平面駐車場
※部屋・階数により設備が異なる場合がございます。 |
インフィニティ富沢周辺の空室物件
仙台市太白区周辺が得意な不動産店舗
株式会社エイブル長町南店
- オススメ
オススメポイント 元気で明るいスタッフが皆様のご来店お待ちしております!!
- 交通
- 仙台市営地下鉄南北線/長町南駅
- 所在地
- 宮城県仙台市太白区長町7-19-37副都心長町百番館1F
- 年中無休
- 駐車場有
- 多店舗展開
- 開店10年以上
掲載物件数:
3184
件
- 得意駅
- 長町一丁目駅 長町駅 長町南駅 富沢駅 名取駅 他
- 得意エリア
- 仙台市太白区 仙台市若林区 名取市 岩沼市 仙台市青葉区 他
022-304-0567
