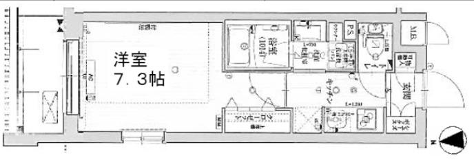
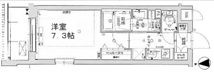
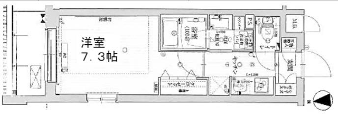
ベラジオ堀川今出川Ⅱ203号室(京都市上京区寺今町)の建物情報
ベラジオ堀川今出川Ⅱ203号室 賃貸物件基本情報
このページの情報は広告情報ではありません。過去から現在までCHINTAIネットに掲載のあった物件情報を元に作成した参考ページです。
| 交通 |
京都市営地下鉄烏丸線/鞍馬口駅
徒歩23分
京都市営地下鉄烏丸線/今出川駅 徒歩12分 京都市営地下鉄烏丸線/丸太町駅 バス11分:停歩3分 |
|---|---|
| 駐車場 | 駐車場あり |
| 環境 |
--
※部屋・階数により設備が異なる場合がございます。 |
| 建物設備 |
オートロック
/
宅配ボックス
/
防犯カメラ
/
エレベーター
/
24時間ゴミ出し可
/
敷地内ごみ置き場
/
都市ガス
/
電気
/
公営上水道
/
下水道
/
駐輪場
/
バイク置場
※部屋・階数により設備が異なる場合がございます。 |
ベラジオ堀川今出川Ⅱ203号室周辺の空室物件
京都市上京区周辺が得意な不動産店舗
株式会社エイブル今出川店
- オススメ
オススメポイント 学生様からファミリーまで当店が自信を持って提案いたします
- 交通
- 京都市営地下鉄烏丸線/今出川駅
- 所在地
- 京都府京都市上京区今出川通室町東入今出川町319-3加藤ビル1F
- 駅から徒歩3分以内
- 多店舗展開
- 年中無休
- 駅まで車で送迎可
掲載物件数:
853
件
- 得意駅
- 今出川駅 丸太町駅 北大路駅 鞍馬口駅 北山駅 他
- 得意エリア
- 京都市上京区 京都市北区 京都市中京区 京都市左京区
075-432-3151
