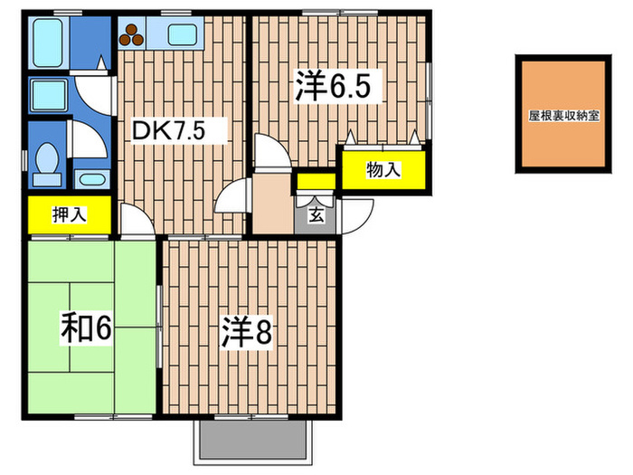
サングリーンハイツ(神奈川県横浜市港南区芹が谷4丁目)の建物情報
サングリーンハイツ 賃貸物件基本情報
このページの情報は広告情報ではありません。過去から現在までCHINTAIネットに掲載のあった物件情報を元に作成した参考ページです。
| 交通 |
横須賀線/東戸塚駅
徒歩36分
京急本線・久里浜線/上大岡駅 徒歩38分 横浜市営地下鉄ブルーライン/上永谷駅 徒歩22分 |
|---|---|
| 駐車場 | 駐車場あり |
| 環境 |
--
※部屋・階数により設備が異なる場合がございます。 |
| 建物設備 |
敷地内ごみ置き場
/
都市ガス
/
電気
/
公営上水道
/
下水道
※部屋・階数により設備が異なる場合がございます。 |
サングリーンハイツ周辺の空室物件
横浜市港南区周辺が得意な不動産店舗
株式会社エイブル上大岡店
- オススメ
オススメポイント 横浜エリアの賃貸・お部屋探しは、エイブル上大岡店へ!!
- 交通
- 京急本線・久里浜線/上大岡駅
- 所在地
- 神奈川県横浜市港南区上大岡西1-17-24第3ミツワビル3F
- 仲介手数料家賃の55%以下
- 駅から徒歩3分以内
- 多店舗展開
- 年中無休
掲載物件数:
198
件
- 得意駅
- 上大岡駅 弘明寺駅 屏風浦駅 杉田駅 港南中央駅 他
- 得意エリア
- 横浜市港南区 横浜市神奈川区 横浜市西区 横浜市南区 横浜市保土ケ谷区 他
045-846-2661
