ジェネラスマンション医大前(岩手県盛岡市本町通1丁目)の建物情報
掲載中の賃貸物件は1件あります!
ジェネラスマンション医大前 賃貸物件基本情報
| 交通 |
東北本線/盛岡駅
徒歩23分
山田線/上盛岡駅 徒歩16分 |
|---|---|
| 駐車場 | 駐車場なし |
| 環境 |
--
※部屋・階数により設備が異なる場合がございます。 |
| 建物設備 |
オートロック
/
管理人有り
/
エレベーター1基
/
敷地内ごみ置き場
/
都市ガス
/
電気
/
公営上水道
/
下水道
※部屋・階数により設備が異なる場合がございます。 |
ジェネラスマンション医大前 賃貸物件の空室情報
| 間取図 | 家賃 管理費等 |
敷金/保証金 礼金/償却 |
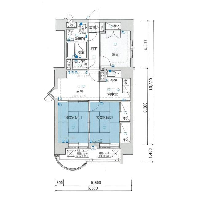
間取り 専有面積 |
方位物件 階層 |
詳細を見る お問い合わせする |
|---|---|---|---|---|---|
|
|
13万円 -- |
2ヶ月/-- 1ヶ月/-- |
2LDK 58.77㎡ |
北西 3階 |
