プレサンス神戸元町ベルシオン(1403)(兵庫県神戸市中央区海岸通4丁目)の建物情報
掲載中の賃貸物件は2件あります!
プレサンス神戸元町ベルシオン(1403) 賃貸物件基本情報
| 交通 |
阪急神戸線/花隈駅
徒歩4分
阪神本線/西元町駅 徒歩4分 神戸市営地下鉄海岸線/みなと元町駅 徒歩2分 |
|---|---|
| 駐車場 | 駐車場なし |
| 環境 |
--
※部屋・階数により設備が異なる場合がございます。 |
| 建物設備 |
オートロック
/
宅配ボックス
/
防犯カメラ
/
エレベーター
/
敷地内ごみ置き場
/
集合郵便受け
/
都市ガス
/
電気
/
公営上水道
/
下水道
/
駐輪場
※部屋・階数により設備が異なる場合がございます。 |
プレサンス神戸元町ベルシオン(1403) 賃貸物件の空室情報
| 間取図 | 家賃 管理費等 |
敷金/保証金 礼金/償却 |
間取り 専有面積 |
方位物件 階層 |
詳細を見る お問い合わせする |
|---|---|---|---|---|---|
|
|
7.4万円 6,000円 |
--/-- 3.7万/-- |
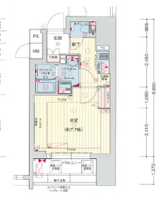
1K 21.6㎡ |
南西 14階 |
|
|
|
7.4万円 6,000円 |
--/-- 3.7万/-- |
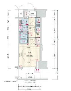
1K 21.6㎡ |
南西 14階 |
プレサンス神戸元町ベルシオン(1403)周辺の空室物件
プレサンス神戸元町ベルシオン(1403)周辺が得意な不動産店舗
株式会社エイブルJR兵庫店
- オススメ
オススメポイント 三宮大阪へアクセス良好!ご満足いただけるお部屋探しは当店へ♪
- 交通
- 東海道本線・山陽本線<JR神戸線>/兵庫駅
- 所在地
- 兵庫県神戸市兵庫区羽坂通4-2-10モンサンミッシェルハサカ1F
- 仲介手数料家賃の55%以下
- 駅から徒歩3分以内
- 年中無休
- 多店舗展開
掲載物件数:
944
件
- 得意駅
- 兵庫駅 神戸駅 高速神戸駅 新開地駅 大開駅 他
- 得意エリア
- 神戸市兵庫区 神戸市灘区 神戸市長田区 神戸市須磨区 神戸市北区 他
078-384-6080
