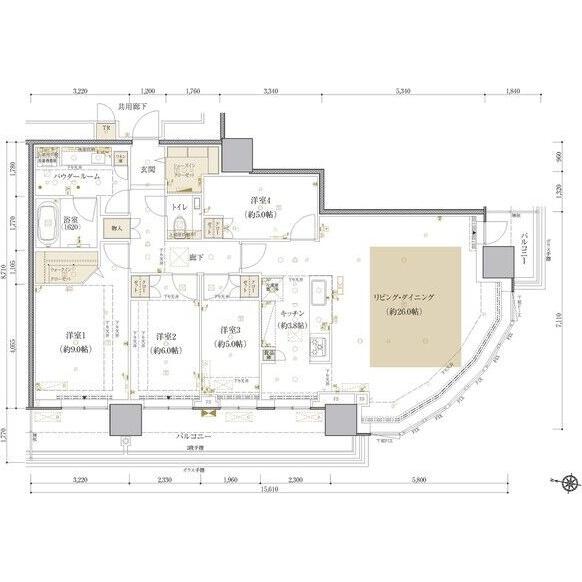
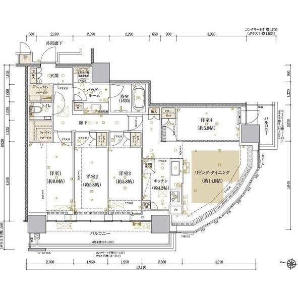
第2大西ビル(北海道札幌市北区北八条西1丁目)の建物情報
第2大西ビル 賃貸物件基本情報
このページの情報は広告情報ではありません。過去から現在までCHINTAIネットに掲載のあった物件情報を元に作成した参考ページです。
| 交通 |
札幌市営地下鉄南北線/さっぽろ駅
徒歩3分
|
|---|---|
| 駐車場 | 駐車場なし |
| 環境 |
--
※部屋・階数により設備が異なる場合がございます。 |
| 建物設備 |
都市ガス
/
灯油ボイラー
/
電気
/
公営上水道
/
下水道
※部屋・階数により設備が異なる場合がございます。 |
第2大西ビル周辺の空室物件
札幌市北区周辺が得意な不動産店舗
株式会社エイブル北二十四条店
- オススメ
オススメポイント あなたのお部屋がココにある♪エイブル北二十四条店♪
- 交通
- 札幌市営地下鉄南北線/北24条駅
- 所在地
- 北海道札幌市北区北24条西5-1-20まるへいビル1F
- 女性スタッフ対応
- 仲介手数料家賃の55%以下
- 駅から徒歩3分以内
- 多店舗展開
掲載物件数:
3515
件
- 得意駅
- 北24条駅 北34条駅 麻生駅 元町駅 環状通東駅 他
- 得意エリア
- 札幌市北区 札幌市東区 札幌市中央区 札幌市白石区 札幌市豊平区 他
011-707-2111
