グランメゾンクレスト南蔵王Ⅱ(広島県福山市南蔵王町4丁目)の建物情報
掲載中の賃貸物件は3件あります!
グランメゾンクレスト南蔵王Ⅱ 賃貸物件基本情報
| 交通 |
山陽本線(中国)/福山駅
徒歩43分
山陽本線(中国)/東福山駅 徒歩19分 福塩線/横尾駅 徒歩60分 |
|---|---|
| 駐車場 | 駐車場あり |
| 環境 |
--
※部屋・階数により設備が異なる場合がございます。 |
| 建物設備 |
敷地内ごみ置き場
/
LPガス
/
電気
/
公営上水道
/
下水道
/
駐車場1台無料
/
駐車2台可
/
駐輪場
/
バイク置場
※部屋・階数により設備が異なる場合がございます。 |
グランメゾンクレスト南蔵王Ⅱ 賃貸物件の空室情報
| 間取図 | 家賃 管理費等 |
敷金/保証金 礼金/償却 |
間取り 専有面積 |
方位物件 階層 |
詳細を見る お問い合わせする |
|---|---|---|---|---|---|
|
|
12.8万円 5,000円 |
なし/-- なし/-- |
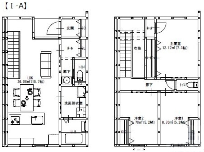
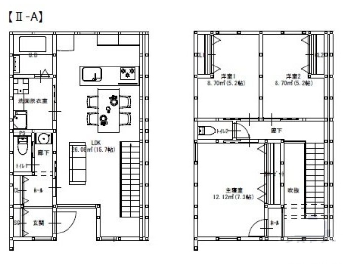
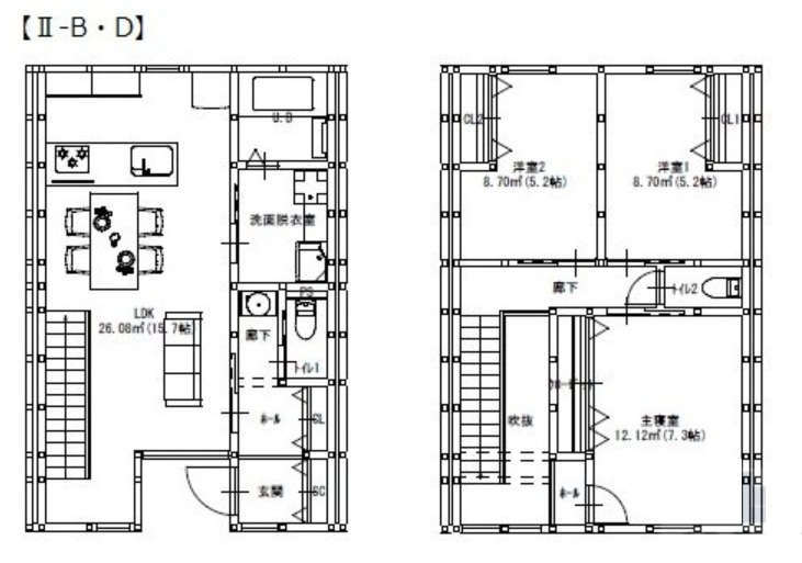
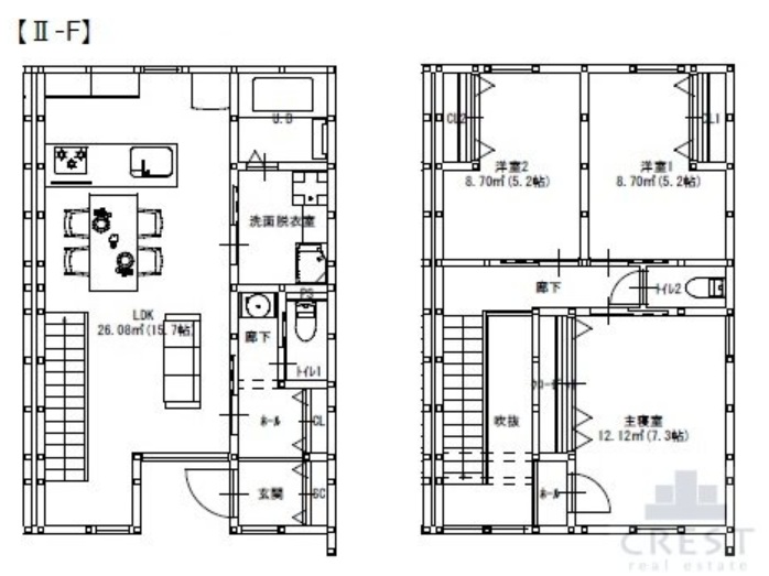
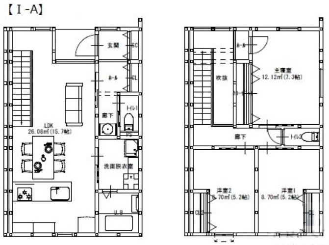
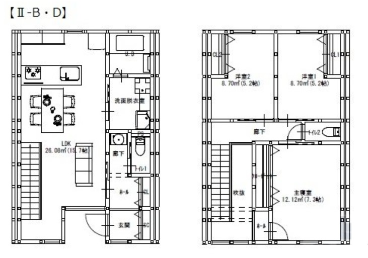
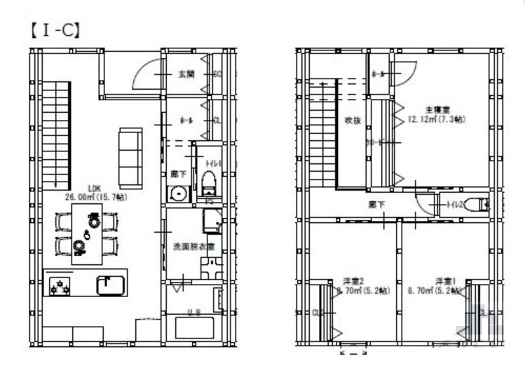
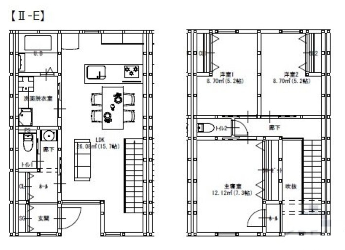
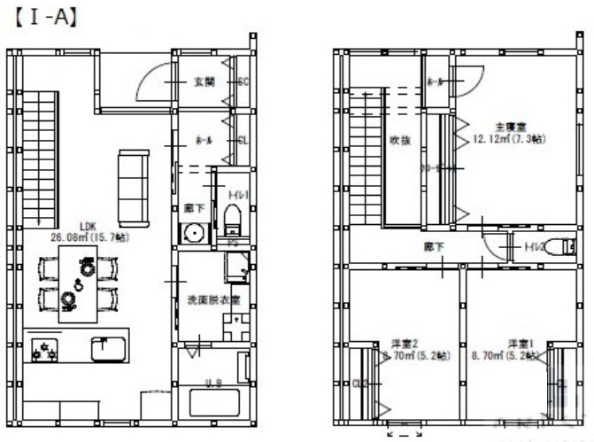
3LDK 91.91㎡ |
東 1-2階 |
|
|
|
12.8万円 5,000円 |
なし/-- なし/-- |
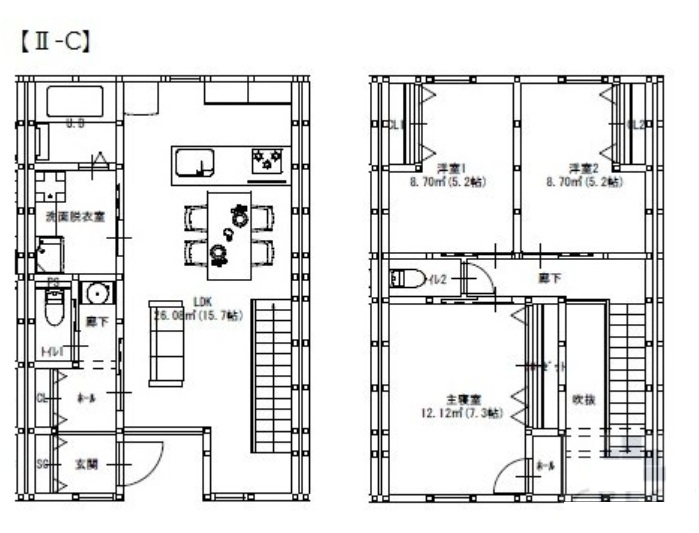
3LDK 91.91㎡ |
東 1-2階 |
|
|
|
12.8万円 5,000円 |
なし/-- なし/-- |
3LDK 91.91㎡ |
東 1-2階 |
グランメゾンクレスト南蔵王Ⅱ周辺の空室物件
グランメゾンクレスト南蔵王Ⅱ周辺が得意な不動産店舗
株式会社アークスエイブルネットワーク神辺店
- オススメ
- キャンペーン
オススメポイント お部屋探しはエイブル^^フジグランすぐ近く緑の看板が目印♪
- 交通
- 福塩線/道上駅
- 所在地
- 広島県福山市神辺町新十九1-17
- 多店舗展開
- 年中無休
- 駅まで車で送迎可
- 駐車場有
- キャンペーン
- キャンペーン実施中!
掲載物件数:
2849
件
- 得意駅
- 神辺駅 万能倉駅 駅家駅 福山駅 湯野駅 他
- 得意エリア
- 尾道市 福山市 府中市 笠岡市 井原市 他
084-966-9655
