近藤ハイツII(広島県 福山市 新涯町 5丁目)の建物情報
近藤ハイツII 賃貸物件基本情報
このページの情報は広告情報ではありません。過去から現在までCHINTAIネットに掲載のあった物件情報を元に作成した参考ページです。
| 交通 |
山陽本線(中国)/福山駅
バス21分:停歩5分
|
|---|---|
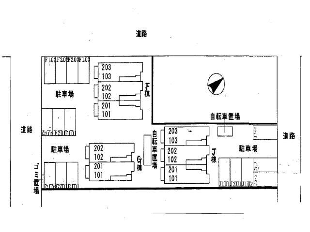
| 駐車場 | 駐車場あり |
| 環境 |
--
※部屋・階数により設備が異なる場合がございます。 |
| 建物設備 |
LPガス
/
公営上水道
/
駐車場2台無料
/
駐車2台可
/
カーポート
※部屋・階数により設備が異なる場合がございます。 |
