シングルピア五日市(広島県広島市佐伯区五日市駅前1丁目)の建物情報
掲載中の賃貸物件は1件あります!
シングルピア五日市 賃貸物件基本情報
| 交通 |
山陽本線(中国)/五日市駅
徒歩4分
広島電鉄宮島線<広島市電>/井口駅 徒歩24分 広島電鉄宮島線<広島市電>/修大協創中高前駅 徒歩10分 広島電鉄宮島線<広島市電>/広電五日市駅 徒歩5分 広島電鉄宮島線<広島市電>/佐伯区役所前駅 徒歩13分 広島電鉄宮島線<広島市電>/楽々園駅 徒歩23分 |
|---|---|
| 駐車場 | 駐車場なし |
| 環境 |
--
※部屋・階数により設備が異なる場合がございます。 |
| 建物設備 |
オートロック
/
エレベーター
/
敷地内ごみ置き場
/
集合郵便受け
/
LPガス
/
電気
/
公営上水道
/
下水道
/
駐輪場
※部屋・階数により設備が異なる場合がございます。 |
シングルピア五日市 賃貸物件の空室情報
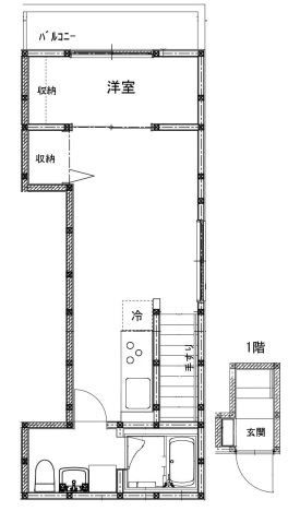
| 間取図 | 家賃 管理費等 |
敷金/保証金 礼金/償却 |
間取り 専有面積 |
方位物件 階層 |
詳細を見る お問い合わせする |
|---|---|---|---|---|---|
|
|
4.5万円 -- |
5万/-- --/-- |
1K 20.16㎡ |
東 5階 |
シングルピア五日市周辺の空室物件
シングルピア五日市周辺が得意な不動産店舗
株式会社エイブル五日市店
- オススメ
オススメポイント ★広島エイブルはお客様の希望に応えていきます★
- 交通
- 山陽本線(中国)/五日市駅
- 所在地
- 広島県広島市佐伯区五日市駅前1-10-1スターライトハイム1F
- 多店舗展開
- 駐車場有
- 仲介手数料家賃の55%以下
- 駅から徒歩3分以内
掲載物件数:
876
件
- 得意駅
- 新井口駅 五日市駅 廿日市駅 宮内串戸駅 阿品駅 他
- 得意エリア
- 広島市佐伯区 広島市西区 廿日市市 広島市安佐南区 広島市中区 他
082-921-8126
