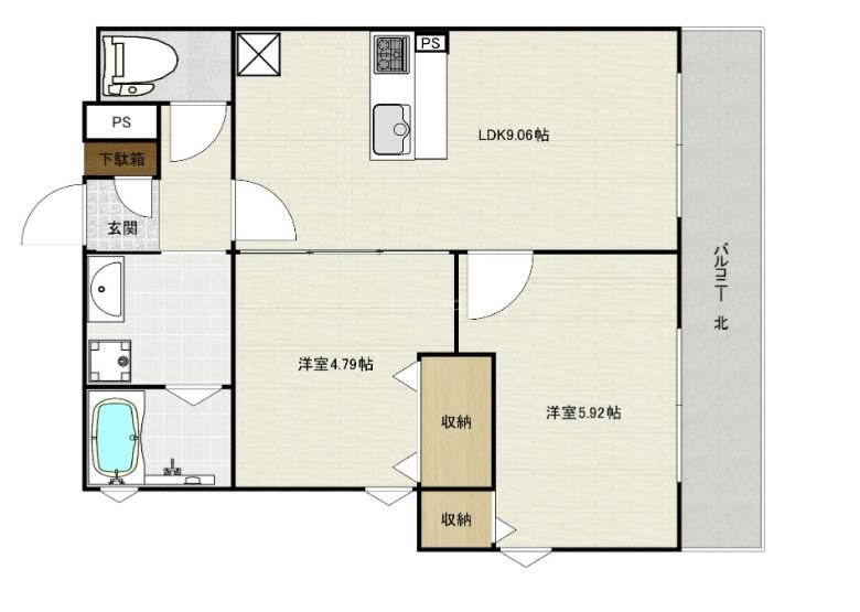
ヴェルジュ大野城レジデンシャルスイート(福岡県大野城市下大利4丁目)の建物情報
ヴェルジュ大野城レジデンシャルスイート 賃貸物件基本情報
このページの情報は広告情報ではありません。過去から現在までCHINTAIネットに掲載のあった物件情報を元に作成した参考ページです。
| 交通 |
鹿児島本線/大野城駅
徒歩17分
鹿児島本線/水城駅 徒歩4分 西鉄天神大牟田線/下大利駅 徒歩10分 |
|---|---|
| 駐車場 | 駐車場なし |
| 環境 |
--
※部屋・階数により設備が異なる場合がございます。 |
| 建物設備 |
オートロック
/
宅配ボックス
/
LPガス
/
電気
/
公営上水道
/
下水道
※部屋・階数により設備が異なる場合がございます。 |
