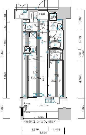
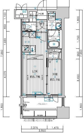
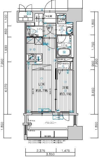
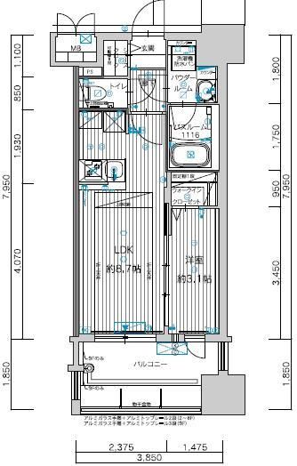
グランフォーレ千早マークスクエアイーストウイング(福岡県福岡市東区千早4丁目)の建物情報
グランフォーレ千早マークスクエアイーストウイング 賃貸物件基本情報
このページの情報は広告情報ではありません。過去から現在までCHINTAIネットに掲載のあった物件情報を元に作成した参考ページです。
| 交通 |
西鉄貝塚線/名島駅
徒歩13分
鹿児島本線/千早駅 徒歩4分 西鉄貝塚線/西鉄千早駅 徒歩4分 |
|---|---|
| 駐車場 | 駐車場なし |
| 環境 |
--
※部屋・階数により設備が異なる場合がございます。 |
| 建物設備 |
オートロック
/
宅配ボックス
/
防犯カメラ
/
エレベーター
/
敷地内ごみ置き場
/
集合郵便受け
/
LPガス
/
電気
/
公営上水道
/
下水道
/
駐輪場
※部屋・階数により設備が異なる場合がございます。 |
グランフォーレ千早マークスクエアイーストウイング周辺の空室物件
福岡市東区周辺が得意な不動産店舗
株式会社エイブル香椎駅前店
- オススメ
オススメポイント お客様にはどんな時でも満足をがモットーです!一生懸命やります
- 交通
- 鹿児島本線/香椎駅
- 所在地
- 福岡県福岡市東区香椎駅前1-13-25香椎駅前ロイヤルビル1F
- 多店舗展開
- 仲介手数料家賃の55%以下
- 駅から徒歩3分以内
- 年中無休
掲載物件数:
288
件
- 得意駅
- 千早駅 香椎駅 九産大前駅 名島駅 西鉄香椎駅 他
- 得意エリア
- 福岡市東区 福岡市博多区 福岡市中央区 宗像市 古賀市 他
092-672-3322
