オリエンタル朝日ヶ丘(401)(福岡県北九州市小倉北区井堀2丁目)の建物情報
掲載中の賃貸物件は3件あります!
オリエンタル朝日ヶ丘(401) 賃貸物件基本情報
| 交通 |
鹿児島本線/小倉駅
バス26分:停歩5分
|
|---|---|
| 駐車場 | 駐車場なし |
| 環境 |
--
※部屋・階数により設備が異なる場合がございます。 |
| 建物設備 |
オートロック
/
集合郵便受け
/
LPガス
/
電気
/
公営上水道
/
下水道
/
駐輪場
※部屋・階数により設備が異なる場合がございます。 |
オリエンタル朝日ヶ丘(401) 賃貸物件の空室情報
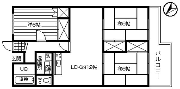
| 間取図 | 家賃 管理費等 |
敷金/保証金 礼金/償却 |
間取り 専有面積 |
方位物件 階層 |
詳細を見る お問い合わせする |
|---|---|---|---|---|---|
|
|
3万円 3,000円 |
--/-- --/-- |
1R 21.7㎡ |
南東 4階 |
|
|
|
3万円 3,000円 |
--/-- --/-- |
1R 21.7㎡ |
南東 4階 |
|
|
|
3万円 3,000円 |
--/-- --/-- |
1R 21.7㎡ |
南東 4階 |
オリエンタル朝日ヶ丘(401)周辺の空室物件
オリエンタル朝日ヶ丘(401)周辺が得意な不動産店舗
株式会社エイブル小倉店
- オススメ
オススメポイント エイブルでは「学割」、「女子割」キャンペーンも実施中!
- 交通
- 鹿児島本線/小倉駅
- 所在地
- 福岡県北九州市小倉北区米町1-2-18LALA TERRACE1F
- 仲介手数料家賃の55%以下
- 多店舗展開
- 開店10年以上
- 駅まで車で送迎可
掲載物件数:
1306
件
- 得意駅
- 小倉駅 西小倉駅 門司駅 門司港駅 平和通駅 他
- 得意エリア
- 北九州市小倉北区 北九州市門司区 北九州市戸畑区 北九州市小倉南区
093-522-7100
