メゾンドカシェット(福岡県福岡市博多区三筑2丁目)の建物情報
掲載中の賃貸物件は2件あります!
メゾンドカシェット 賃貸物件基本情報
| 交通 |
鹿児島本線/笹原駅
徒歩15分
鹿児島本線/南福岡駅 徒歩15分 鹿児島本線/春日駅 徒歩28分 西鉄天神大牟田線/井尻駅 徒歩21分 西鉄天神大牟田線/雑餉隈駅 徒歩11分 |
|---|---|
| 駐車場 | 駐車場あり |
| 環境 |
--
※部屋・階数により設備が異なる場合がございます。 |
| 建物設備 |
オートロック
/
天然ガス
/
電気
/
公営上水道
/
下水道
※部屋・階数により設備が異なる場合がございます。 |
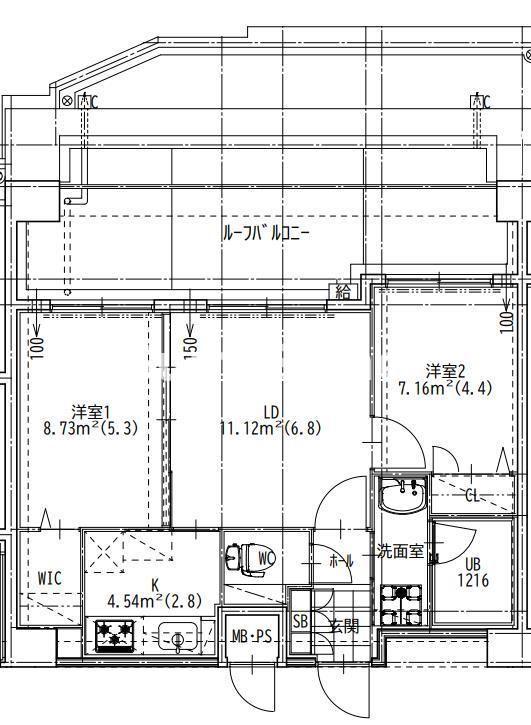
メゾンドカシェット 賃貸物件の空室情報
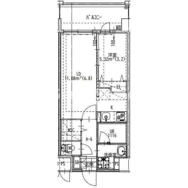
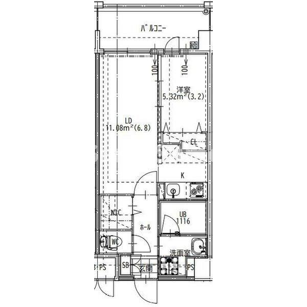
| 間取図 | 家賃 管理費等 |
敷金/保証金 礼金/償却 |
間取り 専有面積 |
方位物件 階層 |
詳細を見る お問い合わせする |
|---|---|---|---|---|---|
|
|
4.5万円 3,000円 |
--/-- 4.5万/-- |
1DK 33.13㎡ |
南 4階 |
|
|
|
4.5万円 3,000円 |
--/-- 4.5万/-- |
1DK 33.13㎡ |
南 4階 |
メゾンドカシェット周辺の空室物件
メゾンドカシェット周辺が得意な不動産店舗
株式会社エイブル南福岡店
- オススメ
オススメポイント 最高のお部屋探しをお手伝いさせて頂きます☆
- 交通
- 鹿児島本線/南福岡駅
- 所在地
- 福岡県福岡市博多区元町1-7-12MFビル1F
- 仲介手数料家賃の55%以下
- 駅から徒歩3分以内
- 多店舗展開
- 開店10年以上
掲載物件数:
386
件
- 得意駅
- 南福岡駅 笹原駅 春日駅 大野城駅 竹下駅 他
- 得意エリア
- 福岡市博多区 春日市 福岡市南区 大野城市 那珂川市 他
092-571-6162
