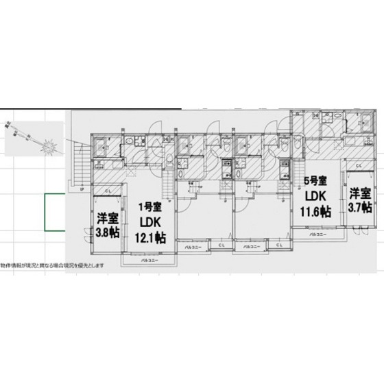
レクサス21(福岡県福岡市西区小戸4丁目)の建物情報
レクサス21 賃貸物件基本情報
このページの情報は広告情報ではありません。過去から現在までCHINTAIネットに掲載のあった物件情報を元に作成した参考ページです。
| 交通 |
筑肥線/姪浜駅
徒歩9分
筑肥線/下山門駅 徒歩13分 |
|---|---|
| 駐車場 | 駐車場なし |
| 環境 |
--
※部屋・階数により設備が異なる場合がございます。 |
| 建物設備 |
都市ガス
/
灯油ボイラー
/
電気
/
公営上水道
/
下水道
※部屋・階数により設備が異なる場合がございます。 |
レクサス21周辺の空室物件
福岡市西区周辺が得意な不動産店舗
株式会社エイブル九大学研都市駅前店
- オススメ
オススメポイント お部屋探しは地域密着店のエイブルへ!
- 交通
- 筑肥線/九大学研都市駅
- 所在地
- 福岡県福岡市西区北原1-12-44サンライト学研都市1F
- 駅まで車で送迎可
- 入居ローン対応可
- 仲介手数料家賃の55%以下
- 駅から徒歩3分以内
掲載物件数:
182
件
- 得意駅
- 九大学研都市駅 今宿駅 周船寺駅 波多江駅 筑前前原駅 他
- 得意エリア
- 福岡市西区 糸島市
092-805-8181
