デニス博多(福岡県福岡市博多区比恵町)の建物情報
掲載中の賃貸物件は1件あります!
デニス博多 賃貸物件基本情報
| 交通 |
鹿児島本線/博多駅
徒歩16分
福岡市営地下鉄空港線/博多駅 徒歩16分 鹿児島本線/竹下駅 徒歩25分 福岡市営地下鉄空港線/祇園駅 徒歩24分 福岡市営地下鉄空港線/東比恵駅 徒歩9分 福岡市営地下鉄空港線/福岡空港駅 徒歩35分 |
|---|---|
| 駐車場 | 駐車場あり |
| 環境 |
3駅利用可
/
2沿線利用可
※部屋・階数により設備が異なる場合がございます。 |
| 建物設備 |
敷地内ごみ置き場
/
駐輪場
※部屋・階数により設備が異なる場合がございます。 |
デニス博多 賃貸物件の空室情報
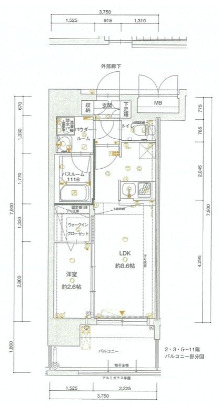
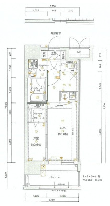
| 間取図 | 家賃 管理費等 |
敷金/保証金 礼金/償却 |
間取り 専有面積 |
方位物件 階層 |
詳細を見る お問い合わせする |
|---|---|---|---|---|---|
|
|
4.2万円 2,500円 |
--/-- --/-- |
1K 20㎡ |
北東 2階 |
