桜木町1-36、1-38貸店舗(愛媛県新居浜市桜木町)の建物情報
桜木町1-36、1-38貸店舗 賃貸物件基本情報
このページの情報は広告情報ではありません。過去から現在までCHINTAIネットに掲載のあった物件情報を元に作成した参考ページです。
| 交通 |
予讃線・内子線/新居浜駅
徒歩29分
|
|---|---|
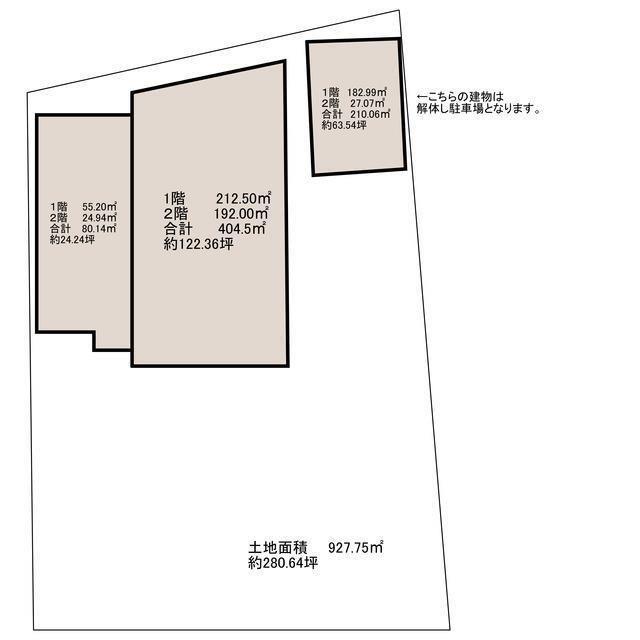
| 駐車場 | 駐車場なし |
| 環境 |
--
※部屋・階数により設備が異なる場合がございます。 |
| 建物設備 |
公営上水道
/
下水道
/
駐車並列3台
※部屋・階数により設備が異なる場合がございます。 |
