仮)D-ROOM今井2丁目(千葉県千葉市中央区今井2丁目)の建物情報
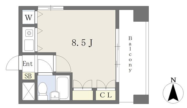
仮)D-ROOM今井2丁目 賃貸物件基本情報
このページの情報は広告情報ではありません。過去から現在までCHINTAIネットに掲載のあった物件情報を元に作成した参考ページです。
| 交通 |
京葉線/蘇我駅
徒歩6分
内房線/蘇我駅 徒歩6分 外房線/蘇我駅 徒歩6分 |
|---|---|
| 駐車場 | 駐車場なし |
| 環境 |
3駅利用可
/
3沿線駅利用可
/
閑静な住宅地
/
平坦地
/
駅まで平坦
/
前面棟無
※部屋・階数により設備が異なる場合がございます。 |
| 建物設備 |
宅配ボックス
/
セキュリティー会社加入済
/
敷地内ごみ置き場
/
都市ガス
/
公営上水道
/
駐輪場
※部屋・階数により設備が異なる場合がございます。 |
仮)D-ROOM今井2丁目周辺の空室物件
千葉市中央区周辺が得意な不動産店舗
株式会社エイブル蘇我店
- オススメ
オススメポイント 蘇我駅を中心に内房外房、京成千原線など、様々対応可能です。
- 交通
- 内房線/蘇我駅
- 所在地
- 千葉県千葉市中央区南町2-8-9大塚ビル2F
- 仲介手数料家賃の55%以下
- 駅から徒歩3分以内
- 多店舗展開
- 年中無休
掲載物件数:
485
件
- 得意駅
- 本千葉駅 蘇我駅 浜野駅 八幡宿駅 鎌取駅 他
- 得意エリア
- 千葉市中央区 千葉市緑区 市原市 茂原市
043-266-3821
