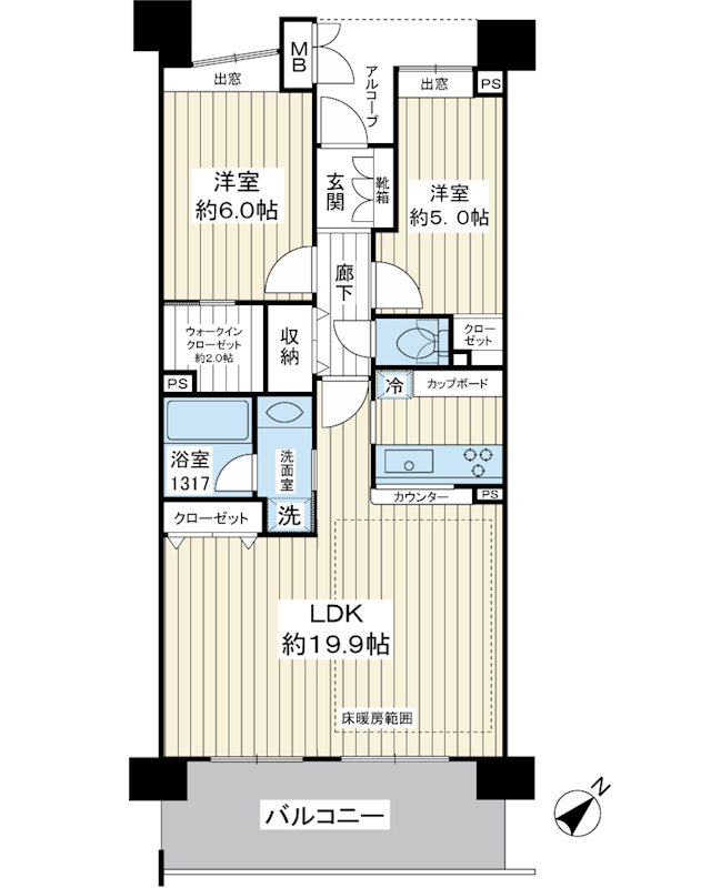
京成サンコーポA号棟(千葉県浦安市富岡3丁目)の建物情報
京成サンコーポA号棟 賃貸物件基本情報
このページの情報は広告情報ではありません。過去から現在までCHINTAIネットに掲載のあった物件情報を元に作成した参考ページです。
| 交通 |
武蔵野線/舞浜駅
徒歩30分
京葉線/新浦安駅 徒歩15分 ディズニーリゾートライン/リゾートゲートウェイ・ステーション駅 徒歩31分 |
|---|---|
| 駐車場 | 駐車場なし |
| 環境 |
閑静な住宅地
※部屋・階数により設備が異なる場合がございます。 |
| 建物設備 |
エレベーター1基
/
敷地内ごみ置き場
/
集合郵便受け
/
都市ガス
/
電気
/
公営上水道
/
下水道
/
駐輪場
※部屋・階数により設備が異なる場合がございます。 |
京成サンコーポA号棟周辺の空室物件
浦安市周辺が得意な不動産店舗
株式会社エイブル浦安店
- オススメ
オススメポイント 浦安エリア(浦安・新浦安・舞浜)のお部屋探しはお任せ下さい!
- 交通
- 東西線/浦安駅
- 所在地
- 千葉県浦安市北栄1-17-15浦安駅前ビル5F
- 女性スタッフ対応
- 仲介手数料家賃の55%以下
- 駅から徒歩3分以内
- 多店舗展開
掲載物件数:
199
件
- 得意駅
- 浦安駅 葛西駅 南行徳駅 妙典駅 新浦安駅 他
- 得意エリア
- 浦安市 市川市 江戸川区
047-355-1199
