仮)D-Solis上社(愛知県名古屋市名東区上社3丁目)の建物情報
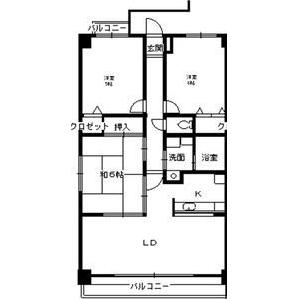
仮)D-Solis上社 賃貸物件基本情報
このページの情報は広告情報ではありません。過去から現在までCHINTAIネットに掲載のあった物件情報を元に作成した参考ページです。
| 交通 |
名古屋市営地下鉄東山線/上社駅
徒歩8分
名古屋市営地下鉄東山線/本郷駅 徒歩4分 名古屋市営地下鉄東山線/藤が丘駅 徒歩20分 |
|---|---|
| 駐車場 | 駐車場あり |
| 環境 |
--
※部屋・階数により設備が異なる場合がございます。 |
| 建物設備 |
オートロック
/
防犯カメラ
/
敷地内ごみ置き場
/
都市ガス
/
電気
/
公営上水道
/
下水道
/
駐輪場
※部屋・階数により設備が異なる場合がございます。 |
仮)D-Solis上社周辺の空室物件
名古屋市名東区周辺が得意な不動産店舗
株式会社エイブル藤が丘店
- オススメ
オススメポイント 理想のお部屋探しをサポート致します!仲介手数料家賃の55%!
- 交通
- 名古屋市営地下鉄東山線/藤が丘駅
- 所在地
- 愛知県名古屋市名東区藤が丘141藤が丘駅前ビル2F
- 女性スタッフ対応
- 駅から徒歩3分以内
- 多店舗展開
- 年中無休
掲載物件数:
1060
件
- 得意駅
- 藤が丘駅 本郷駅 上社駅 はなみずき通駅 杁ケ池公園駅 他
- 得意エリア
- 名古屋市名東区 名古屋市守山区 瀬戸市 尾張旭市 日進市 他
052-775-1237
