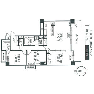
グランドメゾン汐路(210)(愛知県名古屋市瑞穂区石川町1丁目)の建物情報
グランドメゾン汐路(210) 賃貸物件基本情報
このページの情報は広告情報ではありません。過去から現在までCHINTAIネットに掲載のあった物件情報を元に作成した参考ページです。
| 交通 |
名古屋市営地下鉄桜通線/御器所駅
徒歩25分
名古屋市営地下鉄桜通線/桜山駅 徒歩12分 名古屋市営地下鉄桜通線/瑞穂区役所駅 徒歩10分 |
|---|---|
| 駐車場 | 駐車場あり |
| 環境 |
--
※部屋・階数により設備が異なる場合がございます。 |
| 建物設備 |
オートロック
/
宅配ボックス
/
防犯カメラ
/
敷地内ごみ置き場
/
集合郵便受け
/
都市ガス
/
電気
/
公営上水道
/
下水道
/
駐輪場
※部屋・階数により設備が異なる場合がございます。 |
グランドメゾン汐路(210)周辺の空室物件
名古屋市瑞穂区周辺が得意な不動産店舗
株式会社エイブル桜山店
- オススメ
オススメポイント 人気の瑞穂・昭和区エリアのお部屋探しならお任せください!
- 交通
- 名古屋市営地下鉄桜通線/桜山駅
- 所在地
- 愛知県名古屋市瑞穂区瑞穂通1-34サンマリーノ1F
- 駅から徒歩3分以内
- 仲介手数料家賃の55%以下
- 多店舗展開
- 開店10年以上
掲載物件数:
926
件
- 得意駅
- 桜山駅 瑞穂区役所駅 瑞穂運動場西駅 川名駅 御器所駅 他
- 得意エリア
- 名古屋市瑞穂区 名古屋市昭和区 名古屋市熱田区 名古屋市南区 名古屋市天白区 他
052-852-8126
