シャン・ド・フルール(小牧原)(愛知県小牧市小牧原2丁目)の建物情報
シャン・ド・フルール(小牧原) 賃貸物件基本情報
このページの情報は広告情報ではありません。過去から現在までCHINTAIネットに掲載のあった物件情報を元に作成した参考ページです。
| 交通 |
名鉄小牧線/味岡駅
徒歩14分
|
|---|---|
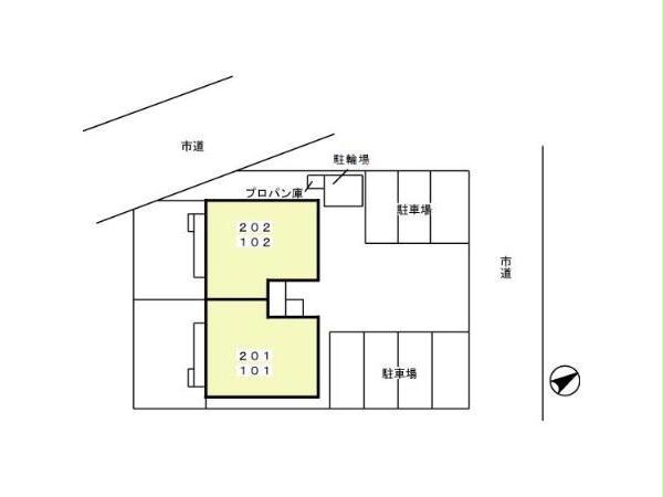
| 駐車場 | 駐車場あり |
| 環境 |
--
※部屋・階数により設備が異なる場合がございます。 |
| 建物設備 |
LPガス
/
電気
/
公営上水道
/
下水道
※部屋・階数により設備が異なる場合がございます。 |
シャン・ド・フルール(小牧原)周辺の空室物件
小牧市周辺が得意な不動産店舗
オススメポイント 創業30年 小牧市専門!地域密着のお部屋探しはお任せ!
- 交通
- 名鉄小牧線/小牧駅
- 所在地
- 愛知県小牧市中央1-279 グランディアF中央1階
- 売買物件取り扱いあり
- 駅から徒歩3分以内
- 年中無休
- 開店10年以上
掲載物件数:
285
件
- 得意駅
- 小牧駅 小牧口駅 小牧原駅 味岡駅 田県神社前駅 他
- 得意エリア
- 小牧市
0568-41-0222
