レオパレス北丘(愛知県瀬戸市北丘町)の建物情報
掲載中の賃貸物件は1件あります!
レオパレス北丘 賃貸物件基本情報
| 交通 |
名鉄瀬戸線/瀬戸市役所前駅
徒歩77分
名鉄瀬戸線/尾張瀬戸駅 バス16分:停歩14分 愛知環状鉄道/中水野駅 徒歩78分 JR東海バス(瀬戸市)/品野 徒歩14分 |
|---|---|
| 駐車場 | 駐車場あり |
| 環境 |
--
※部屋・階数により設備が異なる場合がございます。 |
| 建物設備 |
敷地内ごみ置き場
/
LPガス
/
電気
/
公営上水道
/
下水道
/
駐輪場
※部屋・階数により設備が異なる場合がございます。 |
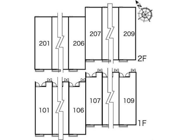
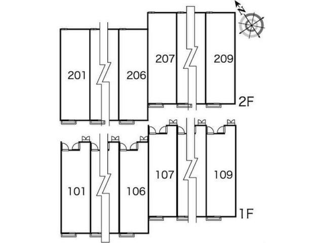
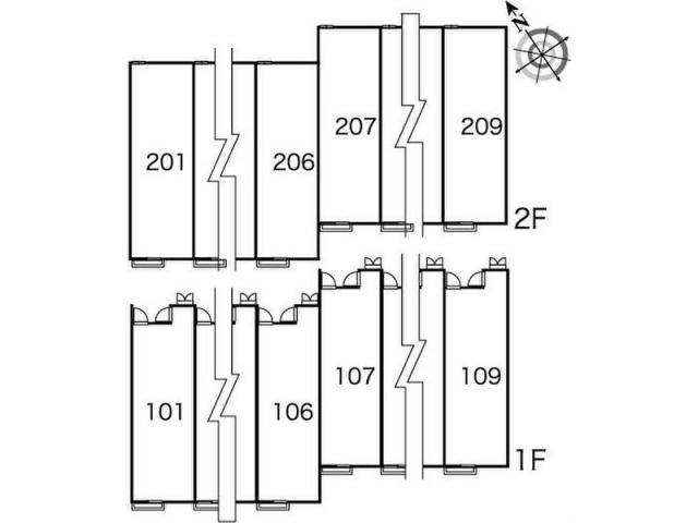
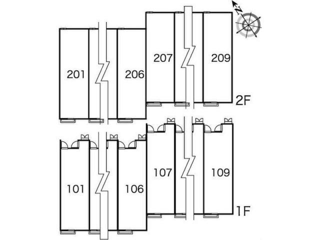
レオパレス北丘 賃貸物件の空室情報
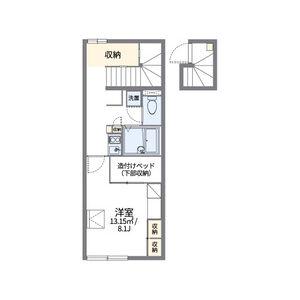
| 間取図 | 家賃 管理費等 |
敷金/保証金 礼金/償却 |
間取り 専有面積 |
方位物件 階層 |
詳細を見る お問い合わせする |
|---|---|---|---|---|---|
|
|
5.1万円 5,000円 |
--/-- --/-- |
1K 31.05㎡ |
東 1階 |
