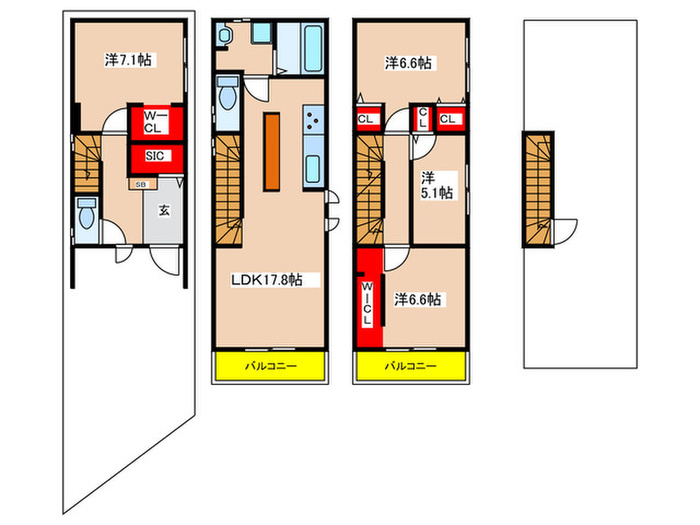
ア-バンライフ原(愛知県名古屋市天白区井口)の建物情報
ア-バンライフ原 賃貸物件基本情報
このページの情報は広告情報ではありません。過去から現在までCHINTAIネットに掲載のあった物件情報を元に作成した参考ページです。
| 交通 |
名古屋市営地下鉄鶴舞線/植田駅
徒歩9分
名古屋市営地下鉄鶴舞線/原駅 徒歩6分 名古屋市営地下鉄鶴舞線/平針駅 徒歩18分 |
|---|---|
| 駐車場 | 駐車場なし |
| 環境 |
--
※部屋・階数により設備が異なる場合がございます。 |
| 建物設備 |
エレベーター
/
集合郵便受け
/
都市ガス
/
電気
/
公営上水道
/
下水道
/
駐輪場
※部屋・階数により設備が異なる場合がございます。 |
ア-バンライフ原周辺の空室物件
名古屋市天白区周辺が得意な不動産店舗
株式会社エイブル塩釜口店
- オススメ
オススメポイント 学割・女子割・実施中!天白区のお部屋探しはお任せ下さい
- 交通
- 名古屋市営地下鉄鶴舞線/塩釜口駅
- 所在地
- 愛知県名古屋市天白区塩釜口1-713-1
- 開店10年以上
- 駐車場有
- 仲介手数料家賃の55%以下
- 駅から徒歩3分以内
掲載物件数:
968
件
- 得意駅
- 塩釜口駅 植田駅 原駅 平針駅 八事駅 他
- 得意エリア
- 名古屋市天白区 名古屋市昭和区 名古屋市名東区 日進市
052-837-3660
