大阪府大阪市淀川区木川東1丁目(家賃7.359万円/1K)の賃貸物件詳細(C010106010784370006116040001)

  • 仲介手数料家賃の55%以下

プレサンス西中島南方セレスト 9階/大阪府大阪市淀川区木川東1丁目の賃貸物件詳細

13時間以内に物件情報が更新されました

次回更新予定日まで 

物件概要

家賃、アクセス、間取りなどをチェック!
初期費用が気になる方はお気軽にお問い合わせください!
家賃
7.359万円 管理費等 7,410円
敷金 / 保証金 -- / -- 礼金 / 償却 100,000円 / --
交通
大阪メトロ御堂筋線/西中島南方駅
徒歩5
阪急神戸線/十三駅
徒歩10
阪急宝塚線/中津駅
徒歩10
住所 大阪府大阪市淀川区木川東1丁目地図で物件の周辺環境をチェック!
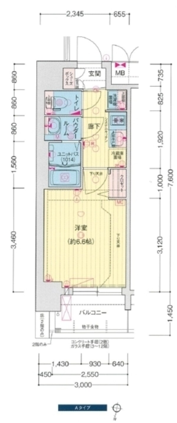
間取り 1K(洋室6.6)
専有面積 22.8m² 築年 2022年07月(築3年)
方位 建物種別 マンション
構造 鉄筋コンクリート造 物件階層 9階/12階建

プレサンス西中島南方セレスト 9階/大阪府大阪市淀川区木川東1丁目の空室確認、詳細情報などお気軽にお問合せください。

こだわり設備・特徴

賃貸物件のこだわり設備・特徴の詳細情報をチェック!
  • バス・トイレ別
  • TVモニターホン
  • 室内洗濯機置き場
  • 駐車場付き
  • エアコン
  • 角部屋
  • 敷地内ゴミ置き場
  • オートロック
  • ウォークインクローゼット
  • 独立洗面台
  • 追い焚き
  • ベランダ・バルコニー
建物タイプ・デザイン デザイナーズ / 分譲賃貸
放送・通信 インターネット接続(月額利用料無料) / 光ファイバー / ※CATV / ネット専用回線

※ CATV について…利用料金は、共益費に含まれるタイプや個別に契約するタイプなど物件により異なります。詳しくは、物件お取り扱い不動産会社にお問合せください。

収納 クローゼット / シューズボックス
キッチン/バス・トイレ ガスコンロ付 / コンロ2口 / コンロ2口以上 / システムキッチン / 洗面台 / シャワー付洗面化粧台 / 洗面所独立 / 洗面所にドア / 洗面化粧台 / バス・トイレ別 / シャワー / 浴室乾燥機 / 脱衣所 / トイレ / 温水洗浄便座 / 暖房便座
セキュリティ オートロック / 宅配ボックス / ディンプルキー / ダブルロックキー / 防犯カメラ
周辺環境・アクセス 2駅利用可 / 3沿線利用可 / 駅まで平坦
その他 室内洗濯機置場 / エアコン / フローリング / 24時間換気システム / ベランダ / バルコニー / エレベーター / 敷地内ごみ置き場 / 耐震構造 / 都市ガス / 給湯  / 電気 / 公営上水道 / 下水道
駐車・駐輪 自転車置き場 / バイク可
その他特徴: バイク置場あり
条件 保証人不要 / 独身限定 / 個人契約限定 / 外国人可 / 独身可
お得条件 仲介手数料不要
家賃保証会社等 保証会社必加入(その他:実費)※相談  保険 損害保険加入要。
備考 こだわりポイント満載のプレサンス西中島南方セレスト。セブン-イレブン 大阪木川西淀川通店まで徒歩2分と近場にコンビニがあるのもポイント。ネット使用料が無料のマンションです。新生活を始めるためのお住まいを探すなら、当社にお任せ下さい。初めての方でも安心していただけるよう、全力でサポートいたします。お気軽に当社へご連絡下さい。
入居時期 応相談
※応相談
契約期間 一般契約:1年間
取引形態 一般媒介 物件管理コード C01010601-078437000611604-0001
情報更新日 2026/05/29 広告更新予定日 2026/06/12

プレサンス西中島南方セレスト 9階/大阪府大阪市淀川区木川東1丁目の次回更新予定日まで 
空室確認、詳細情報などお気軽にお問合せください。

周辺環境・アクセスマップ

賃貸物件の周辺情報を検索!

プレサンス西中島南方セレスト 9階/大阪府大阪市淀川区木川東1丁目の周辺施設を地図に表示

  • ライフ十三東店

    スーパー(ライフ十三東店)まで92m

  • スーパー玉出 淀川店

    スーパー(スーパー玉出 淀川店)まで753m

  • ダイエー 西中島店 ・イオンフードスタイル

    スーパー(ダイエー 西中島店 ・イオンフードスタイル)まで797m

  • セブン-イレブン 大阪木川西淀川通店

    コンビニ(セブン-イレブン 大阪木川西淀川通店)まで129m

  • ファミリーマート 木川西店

    コンビニ(ファミリーマート 木川西店)まで909m

  • 大阪府済生会中津病院

    病院(大阪府済生会中津病院)まで2801m

この物件にお問合せする

この物件を見たい、空室状況を知りたいなどどんな相談でも受付中です!
お問合せ店舗:株式会社BRIDGE 本店
お名前【必須】 お名前(カナ)
ご連絡先【いずれか必須】

メールアドレス

電話番号

※メール受信制限をしている方は、@chintai.co.jpからのメールを受信できるよう設定の変更をお願い致します。

お問い合わせ内容【必須】
コメント【任意】

お引越し予定日、希望するお部屋の条件など、ご自由に記入してください

個人情報の扱いについて同意のうえ、「お問合せを完了する」ボタンを押してください。

取扱い店舗

株式会社BRIDGE 本店

大阪府知事免許(1)第063054号

  • 大阪メトロ四つ橋線/本町
  • 大阪府大阪市西区西本町1丁目11-7 エイトビル西本町2階
  • 営業時間:
  • 定休日:
  • お問合せ番号:611604

電話:06-6535-8488

  • ※お問合せの際は「CHINTAIを見た」と言っていただくとスムーズです。

かんたん!メールでお問合せする(無料)

株式会社BRIDGE 本店の詳細を見る

  • メール送信で携帯・スマートフォンでもプレサンス西中島南方セレスト 9階/大阪府大阪市淀川区木川東1丁目の情報を手軽にご確認いただけます。
  • 物件情報をメールで送信する
♥気になるリストに物件を追加しました
気になるリストを確認

閉じる

ページ上部へ戻る