東京都武蔵野市吉祥寺南町4丁目(家賃17.9万円/2DK)の賃貸物件詳細(C010100111110910014776540001)

フェニックス吉祥寺アヴァンティーク 3階/東京都武蔵野市吉祥寺南町4丁目の賃貸物件詳細

2日以内に掲載されました

次回更新予定日まで 

★ リブマックスグループ管理・家具家電付 ★ 来店不要電子契約 ★

物件概要

家賃、アクセス、間取りなどをチェック!
初期費用が気になる方はお気軽にお問い合わせください!
家賃
17.9万円 管理費等 11,000円
敷金 / 保証金 -- / -- 礼金 / 償却 1ヶ月 / --
交通
総武線/吉祥寺駅
徒歩14
京王井の頭線/三鷹台駅
徒歩10
総武線/西荻窪駅
徒歩14
住所 東京都武蔵野市吉祥寺南町4丁目地図で物件の周辺環境をチェック!
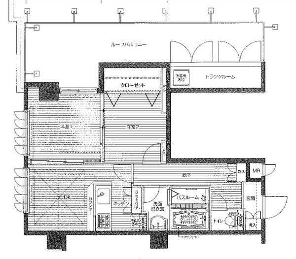
間取り 2DK
専有面積 48.82m² 築年 2001年05月(築25年)
方位 北東 建物種別 マンション
構造 鉄筋コンクリート造 物件階層 3階/6階建

フェニックス吉祥寺アヴァンティーク 3階/東京都武蔵野市吉祥寺南町4丁目の空室確認、詳細情報などお気軽にお問合せください。

こだわり設備・特徴

賃貸物件のこだわり設備・特徴の詳細情報をチェック!
  • バス・トイレ別
  • TVモニターホン
  • 室内洗濯機置き場
  • 駐車場付き
  • エアコン
  • 角部屋
  • 敷地内ゴミ置き場
  • オートロック
  • ウォークインクローゼット
  • 独立洗面台
  • 追い焚き
  • ベランダ・バルコニー
位置 角部屋
建物タイプ・デザイン 分譲賃貸
放送・通信 インターネット接続(月額利用料無料) / 光ファイバー / ※BS受信可 / ※CS受信可 / ネット専用回線

※ BS受信可 , CS受信可 , について…利用料金は、共益費に含まれるタイプや個別に契約するタイプなど物件により異なります。詳しくは、物件お取り扱い不動産会社にお問合せください。

収納 クローゼット / シューズボックス / トランクルーム
キッチン/バス・トイレ ガスコンロ付 / コンロ3口 / コンロ2口以上 / システムキッチン / 対面キッチン / 食器洗浄乾燥機 / 洗面所独立 / 洗面所にドア / バス・トイレ別 / シャワー / オートバス / 浴室乾燥機 / 脱衣所 / トイレ / 温水洗浄便座
セキュリティ オートロック / 宅配ボックス / ディンプルキー / ダブルロックキー / TVモニターフォン / 防犯カメラ
その他 室内洗濯機置場 / 全室エアコン / 24時間換気システム / 全居室フローリング / バルコニー / エレベーター / 24時間ゴミ出し可 / 敷地内ごみ置き場 / 家具・家電付き ※家具・家電付き / 冷蔵庫付 / 洗濯機付 / 全室照明器具付 / 人感照明センサー / 都市ガス / 給湯  / 追い焚き機能 / 電気 / 公営上水道 / 下水道 / 眺望良好 / 通風良好 / 陽当り良好
駐車・駐輪 バイク可
その他特徴: バイク置場あり
条件 二人入居可 / 保証人不要
更新料 1ヶ月
家賃保証会社等 保証会社必加入(その他:実費)※初回保証料:総賃料の100% 更新時:20,000円/年毎 初回保証料:総賃料の100% 更新時:20,000円/年毎 保険 損害保険加入要。
備考 ・保証会社無し法人敷金1ヶ月退去時清掃代精算 ・新生活アメニティパック(布団セット)希望者に販売 ・短期違約金1年未満1ヶ月 ・退去時精算手数料5500円
事務手数料22000円 退去時クリーンコート代99000円 鍵交換代16500円 リブクラブ2200円(月額) SBI少額短期保険800円(月額) ポケットWi-Fi50/G/月無料貸出、テレビ、洗濯機(設置不可物件無し)、冷蔵庫、電子レンジ、掃除機、エアコン・照明・ベット・机・イス・カーテンなどの家具・家電付き。 ・現地待合相談 ・保証会社無し法人敷金1ヶ月 ・新生活アメニティパック(布団セット)希望者に販売 ・家具無し相談(撤去代27500円~) ・短期違約金1年未満1ヵ月・退去時精算5500円
入居時期 即入居 契約期間 定借契約:2年間
取引形態 一般媒介 物件管理コード C01010011-111091001477654-0001
情報更新日 2026/05/03 広告更新予定日 2026/05/17

フェニックス吉祥寺アヴァンティーク 3階/東京都武蔵野市吉祥寺南町4丁目の次回更新予定日まで 
空室確認、詳細情報などお気軽にお問合せください。

周辺環境・アクセスマップ

賃貸物件の周辺情報を検索!

フェニックス吉祥寺アヴァンティーク 3階/東京都武蔵野市吉祥寺南町4丁目の周辺施設を地図に表示

  • コープらい ミニコープ松庵店

    スーパー(コープらい ミニコープ松庵店)まで409m

  • グラム薬局 松庵店

    ドラッグストア(グラム薬局 松庵店)まで502m

  • ファミリーマート 塚本西荻南店

    コンビニ(ファミリーマート 塚本西荻南店)まで729m

  • デイリーヤマザキ 西荻窪店

    コンビニ(デイリーヤマザキ 西荻窪店)まで778m

  • サミットストア 西荻窪駅南店

    スーパー(サミットストア 西荻窪駅南店)まで996m

  • セブンイレブン 西荻窪駅北口店

    コンビニ(セブンイレブン 西荻窪駅北口店)まで1008m

この物件にお問合せする

この物件を見たい、空室状況を知りたいなどどんな相談でも受付中です!
お問合せ店舗:株式会社リブマックスリーシング 高田馬場店
お名前【必須】 お名前(カナ)
ご連絡先【いずれか必須】

メールアドレス

電話番号

※メール受信制限をしている方は、@chintai.co.jpからのメールを受信できるよう設定の変更をお願い致します。

お問い合わせ内容【必須】
コメント【任意】

お引越し予定日、希望するお部屋の条件など、ご自由に記入してください

個人情報の扱いについて同意のうえ、「お問合せを完了する」ボタンを押してください。

取扱い店舗

株式会社リブマックスリーシング 高田馬場店

  • オススメ店舗

国土交通大臣免許(4)第008116号

  • 山手線/高田馬場
  • 東京都新宿区高田馬場4丁目12-5 ホテルリブマックス高田馬場駅前1F
  • 営業時間:午前9時~午後19時
  • 定休日:無し
  • お問合せ番号:1477654(管理コー
    ド:109901)

電話:03-5338-5570

  • ※お問合せの際は「CHINTAIを見た」と言っていただくとスムーズです。

かんたん!メールでお問合せする(無料)

  • 駅から徒歩3分以内
  • 多店舗展開
  • 駐車場有
  • 保証人不要相談可
  • 引越会社紹介
  • 店内バリアフリー
  • 中国語対応可
  • 韓国語対応可
  • ChintaiNet掲載店舗
  • Woman掲載店舗

株式会社リブマックスリーシング 高田馬場店の詳細を見る

  • メール送信で携帯・スマートフォンでもフェニックス吉祥寺アヴァンティーク 3階/東京都武蔵野市吉祥寺南町4丁目の情報を手軽にご確認いただけます。
  • 物件情報をメールで送信する
♥気になるリストに物件を追加しました
気になるリストを確認

閉じる

ページ上部へ戻る