岡山県倉敷市大内(家賃4.7万円/2DK)の賃貸物件詳細(C030010260000000006954470001)

  • 360度パノラマ写真

たちばなハイツ 1階/岡山県倉敷市大内の賃貸物件詳細

2時間以内に物件情報が更新されました

次回更新予定日まで 

忙しい朝でも鏡を見ながらサッと身支度を整えられる洗面化粧台を採用しています。収納はシューズボックス・クロゼットなどが備え付けられているので、衣類や日用品の収納に重宝します。共用部には敷地内ごみ置き場・バイク置場など様々な設備やサービスが揃っているので便利です。余裕のある駐車スペースが魅力的です。

内覧気分で今すぐお部屋を見学!気になるお部屋をぐるっと見てみよう!

  • now pringting

  • now pringting

  • now pringting

  • now pringting

物件概要

家賃、アクセス、間取りなどをチェック!
初期費用が気になる方はお気軽にお問い合わせください!
家賃
4.7万円 管理費等 3,000円
敷金 / 保証金 -- / -- 礼金 / 償却 -- / なし
交通
山陽本線(中国)/倉敷駅
徒歩22
山陽本線(中国)/西阿知駅
徒歩41
伯備線/清音駅
徒歩41
住所 岡山県倉敷市大内地図で物件の周辺環境をチェック!
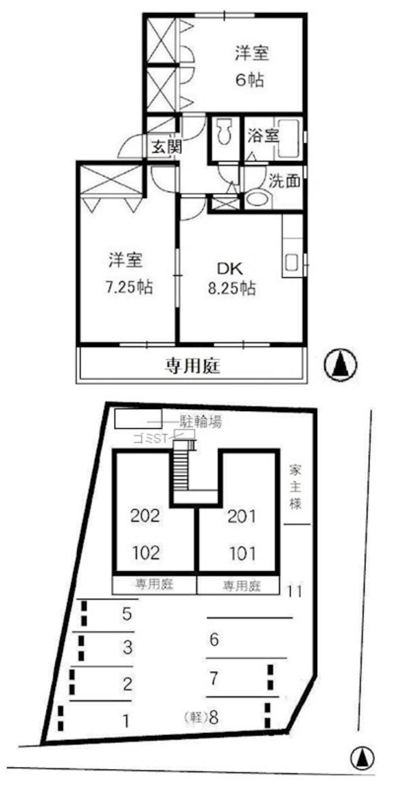
間取り 2DK(DK8.2・洋室6.0・洋室7.2)
専有面積 50.51m² 築年 1997年05月(築29年)
方位 建物種別 アパート
構造 木造 物件階層 1階/2階建

たちばなハイツ 1階/岡山県倉敷市大内の空室確認、詳細情報などお気軽にお問合せください。

こだわり設備・特徴

賃貸物件のこだわり設備・特徴の詳細情報をチェック!
  • バス・トイレ別
  • TVモニターホン
  • 室内洗濯機置き場
  • 駐車場付き
  • エアコン
  • 角部屋
  • 敷地内ゴミ置き場
  • オートロック
  • ウォークインクローゼット
  • 独立洗面台
  • 追い焚き
  • ベランダ・バルコニー
位置 角部屋 / 南向き
収納 クローゼット / シューズボックス / 床下収納 / 収納
キッチン/バス・トイレ ガスコンロ設置可 / 洗面所独立 / 洗面化粧台 / バス・トイレ別 / シャワー / トイレ / 温水洗浄便座
その他 室内洗濯機置場 / エアコン / 専用庭 / 敷地内ごみ置き場 / LPガス / 給湯  / 電気 / 公営上水道 / 下水道 / 陽当り良好
駐車・駐輪 無料駐車場 2台 ※2台目3,000円 / 自転車置き場 / バイク可
その他特徴: バイク置場あり
条件 二人入居可 / 家賃保証会社利用必須 / 子供可
家賃保証会社等 保証会社必加入(その他:実費)※ エルズサポート 初回契約時:50%、月額:1%、初回最低保証料20,000円 保険 損害保険加入要。
備考 鍵交換代13200円 薬や日用品を買うのに便利なハート薬局まで430mです。洗面化粧台が付いているので、歯ブラシやドライヤーなどをまとめてスッキリ収納できます。共用部には敷地内ごみ置き場・バイク置場など様々な設備やサービスが揃っているので便利です。住まい探しの際には、実際に住んでみた時のことを想像しながら進めていくことが大事です。より良い住まいをご提供致します。
入居時期 即入居 契約期間 一般契約:2年間
取引形態 一般媒介 物件管理コード C03001026-000000000695447-0001
情報更新日 2026/05/01 広告更新予定日 2026/05/15

たちばなハイツ 1階/岡山県倉敷市大内の次回更新予定日まで 
空室確認、詳細情報などお気軽にお問合せください。

周辺環境・アクセスマップ

賃貸物件の周辺情報を検索!

たちばなハイツ 1階/岡山県倉敷市大内の周辺施設を地図に表示

  • ハート薬局

    ドラッグストア(ハート薬局)まで430m

  • 倉敷八王寺郵便局

    郵便局(倉敷八王寺郵便局)まで368m

  • みらい保育園

    幼稚園/保育園(みらい保育園)まで443m

  • 山脇歯科医院

    病院(山脇歯科医院)まで442m

  • 倉敷市立精思高校

    高等学校/高等専門学校(倉敷市立精思高校)まで522m

  • 中国銀行倉敷八王寺支店

    銀行(中国銀行倉敷八王寺支店)まで352m

  • なかやま牧場ハート酒津店

    スーパー(なかやま牧場ハート酒津店)まで778m

  • ドルフィン・キッズ保育園

    幼稚園/保育園(ドルフィン・キッズ保育園)まで555m

この物件にお問合せする

この物件を見たい、空室状況を知りたいなどどんな相談でも受付中です!
お問合せ店舗:株式会社アークス エイブルネットワーク倉敷駅北店
お名前【必須】 お名前(カナ)
ご連絡先【いずれか必須】

メールアドレス

電話番号

※メール受信制限をしている方は、@chintai.co.jpからのメールを受信できるよう設定の変更をお願い致します。

お問い合わせ内容【必須】
コメント【任意】

お引越し予定日、希望するお部屋の条件など、ご自由に記入してください

個人情報の扱いについて同意のうえ、「お問合せを完了する」ボタンを押してください。

取扱い店舗

株式会社アークス エイブルネットワーク倉敷駅北店

  • オススメ店舗

国土交通大臣免許(2)第9898号

  • 山陽本線(中国)/倉敷
  • 岡山県倉敷市北浜町8-20-3
  • 営業時間:10:00~18:00
  • 定休日:毎週火曜日 年末年始
  • お問合せ番号:695447

電話:086-441-8511

  • ※お問合せの際は「CHINTAIを見た」と言っていただくとスムーズです。

かんたん!メールでお問合せする(無料)

  • 多店舗展開
  • 駅まで車で送迎可
  • 女性スタッフ対応
  • 駐車場有
  • 社宅・寮対応物件あり
  • 保証人不要相談可
  • 引越会社紹介
  • ChintaiNet掲載店舗
  • エイブルWEB掲載店舗
  • Woman掲載店舗

株式会社アークス エイブルネットワーク倉敷駅北店の詳細を見る

  • メール送信で携帯・スマートフォンでもたちばなハイツ 1階/岡山県倉敷市大内の情報を手軽にご確認いただけます。
  • 物件情報をメールで送信する
♥気になるリストに物件を追加しました
気になるリストを確認

閉じる

ページ上部へ戻る