大阪府大阪市浪速区日本橋5丁目(家賃20万円/2K)の賃貸物件詳細(C010106010784370005315500001)

  • 仲介手数料家賃の55%以下

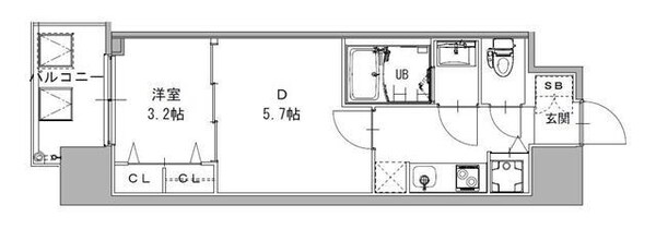
S-RESIDENCE日本橋Qualier 14階/大阪府大阪市浪速区日本橋5丁目の賃貸物件詳細

6時間以内に物件情報が更新されました

次回更新予定日まで 

物件概要

家賃、アクセス、間取りなどをチェック!
初期費用が気になる方はお気軽にお問い合わせください!
家賃
20万円 管理費等 11,000円
敷金 / 保証金 -- / -- 礼金 / 償却 1ヶ月 / --
交通
大阪メトロ堺筋線/恵美須町駅
徒歩3
南海高野線/今宮戎駅
徒歩7
南海本線/難波駅
徒歩10
住所 大阪府大阪市浪速区日本橋5丁目地図で物件の周辺環境をチェック!
間取り 2K(洋室5.7・洋室3.2)
専有面積 30.52m² 築年 2021年03月(築5年)
方位 西 建物種別 マンション
構造 鉄筋コンクリート造 物件階層 14階/15階建

S-RESIDENCE日本橋Qualier 14階/大阪府大阪市浪速区日本橋5丁目の空室確認、詳細情報などお気軽にお問合せください。

こだわり設備・特徴

賃貸物件のこだわり設備・特徴の詳細情報をチェック!
  • バス・トイレ別
  • TVモニターホン
  • 室内洗濯機置き場
  • 駐車場付き
  • エアコン
  • 角部屋
  • 敷地内ゴミ置き場
  • オートロック
  • ウォークインクローゼット
  • 独立洗面台
  • 追い焚き
  • ベランダ・バルコニー
建物タイプ・デザイン デザイナーズ
放送・通信 インターネット接続(月額利用料無料) / ※BS受信可 / ※CS受信可

※ BS受信可 , CS受信可 について…利用料金は、共益費に含まれるタイプや個別に契約するタイプなど物件により異なります。詳しくは、物件お取り扱い不動産会社にお問合せください。

収納 ウォークインクローゼット / シューズボックス / 収納
キッチン/バス・トイレ IHクッキングヒーター付 / コンロ2口 / コンロ2口以上 / システムキッチン / 洗面所独立 / バス・トイレ別 / シャワー / 浴室乾燥機 / 脱衣所 / トイレ(2ヶ所あり) / 暖房便座
セキュリティ オートロック / 宅配ボックス / 管理人有り / ディンプルキー / ダブルロックキー
周辺環境・アクセス 2駅利用可 / 3沿線利用可 / 閑静な住宅地 / 緑豊かな住宅地
その他 室内洗濯機置場 / エアコン / フローリング / 冷房 / 24時間換気システム / ベランダ / エレベーター / 24時間ゴミ出し可 / 敷地内ごみ置き場 / 耐震構造 / 都市ガス / 給湯  / 電気 / 公営上水道 / 下水道 / 通風良好
駐車・駐輪 自転車置き場
条件 ペット相談可 / 二人入居可 / 保証人不要 / 独身限定 / 個人契約限定 / 外国人可 / 独身可
お得条件 仲介手数料不要
家賃保証会社等 保証会社必加入(その他:実費)※相談  保険 損害保険加入要。
備考 「S-RESIDENCE日本橋Qualier」のここがイチオシ。新生活を失敗せず、スタートさせたいならこちらの「S-RESIDENCE日本橋Qualier」はいかがでしょうか。ペットと一緒に暮らしたい方にもうれしい、ペット相談可の物件です。新しい土地での新しい暮らし。大阪市浪速区エリアや地下鉄堺筋線恵美須町付近にあるお部屋をお探しなら、当社にお任せ下さい。素敵なお部屋をご紹介いたします。
入居時期 応相談
※応相談
契約期間 一般契約:2年間
取引形態 一般媒介 物件管理コード C01010601-078437000531550-0001
情報更新日 2026/05/04 広告更新予定日 2026/05/18

S-RESIDENCE日本橋Qualier 14階/大阪府大阪市浪速区日本橋5丁目の次回更新予定日まで 
空室確認、詳細情報などお気軽にお問合せください。

周辺環境・アクセスマップ

賃貸物件の周辺情報を検索!

S-RESIDENCE日本橋Qualier 14階/大阪府大阪市浪速区日本橋5丁目の周辺施設を地図に表示

  • ローソン 日本橋四丁目店

    コンビニ(ローソン 日本橋四丁目店)まで421m

  • セブンイレブン 浪速日本橋西店

    コンビニ(セブンイレブン 浪速日本橋西店)まで441m

  • ライフ 下寺店

    スーパー(ライフ 下寺店)まで438m

  • スーパー玉出 恵美須店

    スーパー(スーパー玉出 恵美須店)まで528m

  • Joshin(ジョーシン) スーパーでんでんランド

    電気量販店/ホームセンター(Joshin(ジョーシン) スーパーでんでんランド)まで67m

  • 三菱UFJ銀行えびす町ATM

    銀行(三菱UFJ銀行えびす町ATM)まで291m

この物件にお問合せする

この物件を見たい、空室状況を知りたいなどどんな相談でも受付中です!
お問合せ店舗:株式会社BRIDGE 本店
お名前【必須】 お名前(カナ)
ご連絡先【いずれか必須】

メールアドレス

電話番号

※メール受信制限をしている方は、@chintai.co.jpからのメールを受信できるよう設定の変更をお願い致します。

お問い合わせ内容【必須】
コメント【任意】

お引越し予定日、希望するお部屋の条件など、ご自由に記入してください

個人情報の扱いについて同意のうえ、「お問合せを完了する」ボタンを押してください。

取扱い店舗

株式会社BRIDGE 本店

大阪府知事免許(1)第063054号

  • 大阪メトロ四つ橋線/本町
  • 大阪府大阪市西区西本町1丁目11-7 エイトビル西本町2階
  • 営業時間:
  • 定休日:
  • お問合せ番号:531550

電話:06-6535-8488

  • ※お問合せの際は「CHINTAIを見た」と言っていただくとスムーズです。

かんたん!メールでお問合せする(無料)

株式会社BRIDGE 本店の詳細を見る

  • メール送信で携帯・スマートフォンでもS-RESIDENCE日本橋Qualier 14階/大阪府大阪市浪速区日本橋5丁目の情報を手軽にご確認いただけます。
  • 物件情報をメールで送信する
♥気になるリストに物件を追加しました
気になるリストを確認

閉じる

ページ上部へ戻る